Ingatlan Televízió
Ingatlan Televízió
további hirdetések
adatlap bezárása

Budapest, XII.kerület 
 

Hivatkozási szám: 5556547
Ingatlan adatai
Irányár: 369 000 000 Ft
Típus: lakás (tégla)
Kategória: eladó
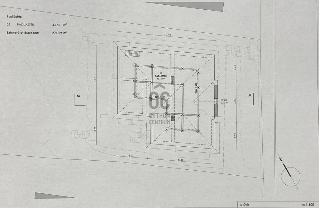
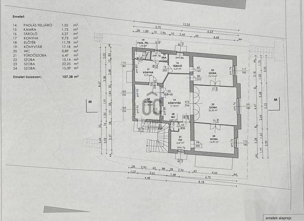
Alapterület: 271 m2
Fűtés: gáz (cirko)
Állapota: felújítást igényel
Szobák száma: 6
Építés éve: 1930
Szintek száma: 1
Részletes leírás
Romantikus villa eladó Budapest egyik legnívósabb kerületében – Tökéletes kialakítási lehetőségek!

Eladó egy lenyűgöző, romantikus villa, amely kiváló átalakítási és bővítési lehetőségeket kínál, akár három különálló lakásra is felosztható.

A villa meglévő szerkezete erős és stabil, a statikai szakvélemény szerint nem szükséges elbontani, a ház szakszerű megerősítéssel megőrizhető, így a villa karakterét megőrzi, miközben modern és funkcionális otthonná alakítható.

Alapvető jellemzői:

-Átalakítási lehetőség: A villa akár három lakásra is felosztható, így ideális családoknak, többgenerációs otthonnak vagy bérbeadásra.
-Tökéletes elhelyezkedés: Kiváló infrastruktúra, könnyen megközelíthető autóval és tömegközlekedéssel is. A 8E busz és a 59-es villamos mindössze pár percre található.
-Ideális célra: Ez az ingatlan kiváló választás családi háznak, wellness panziónak, magánklinikának vagy akár cégközpontnak is.

-A telek és beépíthetőség paraméterei:

-Telek mérete: Minimum 1000 m²
-Beépítési mód: szabadon álló
-Beépítettség: Maximum 15%
-Zöldfelület: Minimum 65%
-Terepszint alatti beépítés: Maximum 35%
-Épületmagasság: Minimum 3,5 m, Maximum 6,5 m
-Szintterületi mutatók: Általános szintterületi mutató: 0,35 m², parkolási szintterületi mutató: 0,20 m²
Miért érdemes ezt az ingatlant választania?

-Kiváló elhelyezkedés: Budapest egyik legkeresettebb és legnyugodtabb kerületében, mégis minden fontos közlekedési lehetőség karnyújtásnyira.
-Rugalmas felhasználási lehetőségek: Az ingatlan többféle célra is tökéletesen alkalmas, legyen szó családi házról, panzióról, klinikáról vagy irodáról.

Kivételes hangulat: A villa romantikus jellegét megőrizve alakítható modern, tágas otthonná, miközben az Ön igényeihez igazodóan bővíthető.
Ne hagyja ki ezt az egyedülálló lehetőséget! Keressen!
További adatok
Telekterület: 1 136 m2
Kert mérete: -
Erkély mérete: -
Felszereltség: -
Parkolás: utcán, közterületen
Kilátás: -
Egyéb extrák:  
Hirdető adatai
Hirdető neve: oc.hu - XI. kerület - Gellért tér
Kapcsolattartó: Léhner Anikó
Hirdető telefonszáma: +36707168616
Honlap: -
 
Üzenetet küldhet a hirdetőnek, árajánlatot tehet az ingatlanra:
Az Ön neve:
Az Ön e-mail címe:
Üzenet: