Ingatlan Televízió
Ingatlan Televízió
további hirdetések
adatlap bezárása

Budapest, XIV.kerület 
 

Hivatkozási szám: 5650179
Ingatlan adatai
Irányár: 230 000 000 Ft
Típus: lakás (tégla)
Kategória: eladó
Alapterület: 275 m2
Fűtés: gáz (cirko)
Állapota: felújított
Szobák száma: 4
Építés éve: 1975
Szintek száma: 1
Részletes leírás
BEFEKTETŐK FIGYELMÉBE AJÁNLOM - Beépíthető nettó hasznos -eladható- terület 480 nm!!

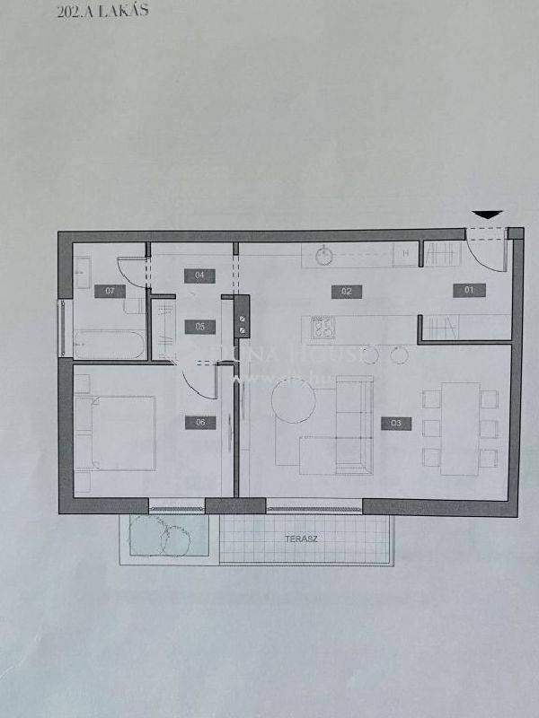
Zugló központi részén, egy már meglévő, de részben átalakítandó 3 szobás, amerikai konyha + nappalis, dupla komfortos, 1. emeleti, belső 2 szintes, erkélyes lakást, és a hozzá tartozó beépíthető tetőteret megvételre kínálom!

A beépíthető nettó hasznos, eladható terület 480 nm.

Az ingatlanra 2 emelet építhető, amelyre érvényes Tervtanácsi jóváhagyás is rendelkezésre áll, így a meglévő lakás átalakításával 1+4 lakás azaz összesen 5 lakás kialakítására van lehetőség.

Ezen a módon kialakítható nettó, értékesíthető terület 480 nm, a meglévő 2 szintes lakás és a második emeleten három, -ebből két lakás két variációban- alakítható ki, és a tetőn egy nagy 4 szoba + nappalis, penthouse jellegű, két teraszos lakás kivitelezhető.

A lakás és a hozzá tartozó tetőtér kizárólag egyben kínálom megvételre!!

A kialakítandó lakások mindegyike terasz/teraszokkal rendelkezik, a lakások nagysága a tervek szerint a következőképpen kivitelezhető:
1. lakás: belső kétszinten 94 nm-es + 8,33 nm terasz, 2 szoba + nappalis,
2. lakás A terv alapján: 63,36 nm-es + 13,97 nm terasz, 2 szoba + nappalis,
3. lakás: A terv alapján: 62,91 nm-es + 5,39 nm terasz, 1 szoba + nappalis

2. lakás: B terv alapján: 49,68 nm-es +13,97 nm terasz, 1 szoba + nappalis,
3. lakás: B terv alapján: 78,94 nm-es + 13,97 nm terasz, 2 szoba + nappalis,
4. lakás: 48,13 nm-es + 6,3 nm terasz, 1 szoba + nappalis,
5. lakás: pent house jellegű: 128,64 nm-es + 12,07 nm loggia + 39,88 nm tetőterasz + (40 nm zöld terasz), 4 szoba + nappalis+ dupla fürdőszobás.

77-es és 82-es troli 1 perc séta, Örs vezér tér 5 perc autóval, séta távolságra Tesco, Lidl, Spar, éjjelnappali,
BGE és Metropolitan egyetemek a közelben.
A Paskál strand és gyógyfürdő 2 perc séta távolságra helyezkedik el.
Ház előtt zöld terület és kerékpár út került kialakításra, a Rákos-patak partján mindkét oldalon 1 éve kialakított futópálya és pihenőpark, és 1 percre közösségi sportpálya található.

További kérdéseivel keressen bizalommal a hét bármely napján!
A Duna House teljes kínálatával kapcsolatban forduljanak hozzám bizalommal!

Bankfüggetlen pénzügyi szakembereink tanácsadással, ügyintézéssel tudják segíteni Önöket álmaik, céljaik megvalósításában!

Vegye igénybe díjmentes konzultációinkat!



https://www.facebook.com/otthonkonnyeden

Referencia szám: LK073503
További adatok
Telekterület: -
Kert mérete: -
Erkély mérete: -
Felszereltség: -
Parkolás: -
Kilátás: -
Egyéb extrák:  
Hirdető adatai
Hirdető neve: dh.hu - Kispest
Kapcsolattartó: Drevnó Béla
Hirdető telefonszáma: +36703077503
Honlap: -
 
Üzenetet küldhet a hirdetőnek, árajánlatot tehet az ingatlanra:
Az Ön neve:
Az Ön e-mail címe:
Üzenet: