Ingatlan Televízió
Ingatlan Televízió
további hirdetések
adatlap bezárása

Budapest, XVIII.kerület 
 

Hivatkozási szám: 5656023
Ingatlan adatai
Irányár: 129 900 000 Ft
Típus: lakás (tégla)
Kategória: eladó
Alapterület: 143 m2
Fűtés: elektromos
Állapota: új
Szobák száma: 5
Építés éve: 2022
Szintek száma: 1
Részletes leírás
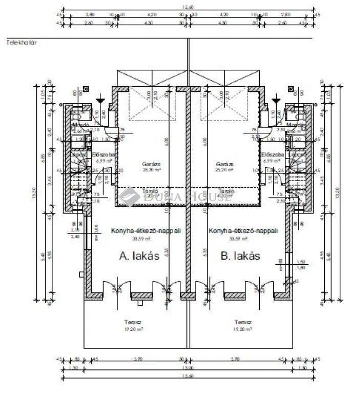
Új építésű, amerikai konyhás nappali + 4 szobás, napelemes, dupla erkélyes ikerházfél Ganzkertvárosban

Eladó Budapest 18.kerületében, Ganzkertváros csendes, új építésű részén egy 143 nm - es, amerikai konyhás nappali + 4 szobás ikerházfél 375 nm - es telekkel.

Minden állami támogatás, CSOK PLUSZ, ILLETÉKMENTESSÉG igénybe vehető!!

A lakás földszinti helyiségei: amerikai konyhás nappali, kamra, előszoba, mosdó, garázs, tároló, terasz.
A lakás nettó földszinti alapterület: 77 nm.

A lakás emeleti helyiségei: 4 db szoba (mindegyik erkélyes), közlekedő, WC, fürdő, 2 db erkély.
A lakás nettó emeleti alapterület: 66 nm

Műszaki leírás:
- 30 - as phorotherm tégla
- 10 cm szigetelés
- hideg- és melegburkolatok 4.000 - 4.500 Ft / nm-ig
- beton födém
- műanyag nyílászárók
- műanyag bejárati ajtó, garázskapu
- infra film fűtés
- napelem

Teljes műszaki leírás, méretarányos tervrajz, teljes dokumentáció irodánkban megtekinthető.

A Duna House teljes kínálatával kapcsolatban forduljon hozzám bizalommal. Hitel ügyintézés garantáltan a legjobb feltételekkel és a leggyorsabban. Eladás és vétel teljes körű ügyintézése, ingyenes tanácsadás, értékbecslés, megbízható ügyvédi háttér biztosítása.IGÉNY ESETÉN - ÉLŐ SKYPEVIDEO LAKÁSBEMUTATÁS, TELJES KÖRŰ ONLINE ÜGYINTÉZÉS!
Zöldi Norbert +36709450148

Referencia szám: HZ032761
További adatok
Telekterület: 375 m2
Kert mérete: -
Erkély mérete: 7 m2
Felszereltség: -
Parkolás: garázs
Kilátás: -
Egyéb extrák:  
Hirdető adatai
Hirdető neve: dh.hu - Szent Imre-kertváros
Kapcsolattartó: Zöldi Norbert
Hirdető telefonszáma: +36709450148
Honlap: -
 
Üzenetet küldhet a hirdetőnek, árajánlatot tehet az ingatlanra:
Az Ön neve:
Az Ön e-mail címe:
Üzenet: