Ingatlan Televízió
Ingatlan Televízió
további hirdetések
adatlap bezárása

Budapest, XXI.kerület 
 

Hivatkozási szám: 5657738
Ingatlan adatai
Irányár: 450 000 000 Ft
Típus: kereskedelmi/ipari ingatlan
Kategória: eladó
Alapterület: 969 m2
Fűtés: -
Állapota: felújított
Szobák száma: -
Építés éve: -
Szintek száma: -
Részletes leírás
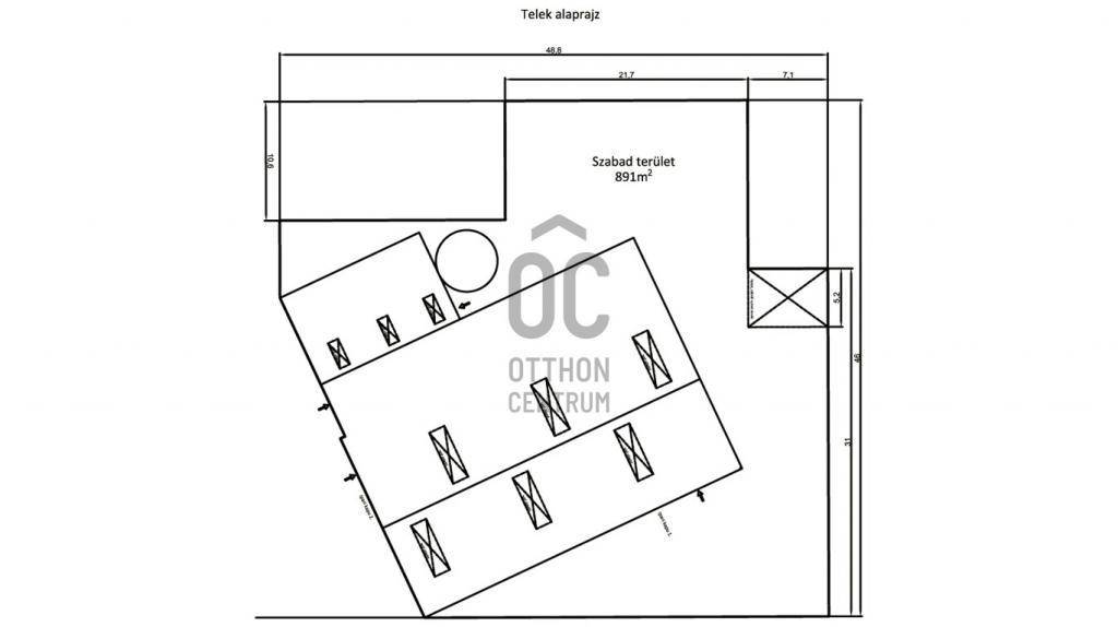
Eladó egy 535nm-es ipari RAKTÁR/CSARNOK, amely acél gerendás, könnyűszerkezettel épült, de a hozzátartozó, irodái és szociális helyiségei PORFIX TÉGLÁBÓL (Ytong) készültek, ami még összesen 434nm-t tesz ki, 1691NM-ES TELKEN!

Főbb jellemzők:
-Tágas belső tér a hatékony tároláshoz és mozgáshoz, 7.8 méteres belmagassággal.

-Stratégikus elhelyezkedés a Csepel műveknél, könnyű hozzáféréssel és szállítási lehetőségekkel.

-Modern létesítmény, amit folyamatosan újítanak, beleértve irodákat és szociális helyiségeket.

-Beépített 3 tonnás teherbírású daru a csarnokban.

-Ellátva ipari árammal a hatékony működés érdekében.

-Rugalmas értékesítési feltételek az igényeihez igazítva.

-AZ ÁR A SZERKEZETKÉSZ ÁLLAPOTRA ÉRTENDŐ!

-Az ingatlanhoz tartozik egy külsőleg megközelíthető kis melléképület, ami kiváló megoldást nyújt azoknak, akik a helyszínen szeretné elszállásolni az alkalmazottjait!

Ez a tökéletes választás vállalkozások és befektetők számára!

Amennyiben felkeltette érdeklődését, várom hívását a hét mindennapján!
„Az energetikai tanúsítvány készítése folyamatban van, amint rendelkezésre áll, úgy azzal a hirdetés frissítésre kerül.”
További adatok
Telekterület: 1 691 m2
Kert mérete: -
Erkély mérete: -
Felszereltség: -
Parkolás: -
Kilátás: -
Egyéb extrák:  
Hirdető adatai
Hirdető neve: oc.hu - XXI. kerület - Zrínyi utca
Kapcsolattartó: Horváthné Máriás Melinda
Hirdető telefonszáma: +36704693901
Honlap: -
 
Üzenetet küldhet a hirdetőnek, árajánlatot tehet az ingatlanra:
Az Ön neve:
Az Ön e-mail címe:
Üzenet: