Ingatlan Televízió
Ingatlan Televízió
további hirdetések
adatlap bezárása

Villány 
 

Hivatkozási szám: 5662071
Ingatlan adatai
Irányár: 22 900 000 Ft
Típus: lakás (tégla)
Kategória: eladó
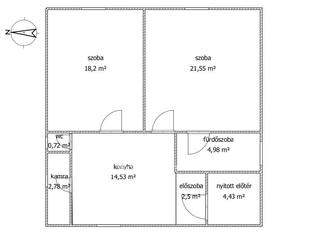
Alapterület: 72 m2
Fűtés: elektromos
Állapota: felújítást igényel
Szobák száma: 2
Építés éve: 1980
Szintek száma: 1
Részletes leírás
Eladó Villány központjában, a Damjanich utcában, vegyes szerkezetű 72,5 négyzetméteres ház 307m2- es rendezett telken!
Jelen állapotában felújításra szorul. Az a megoldás is lehetséges, hogy a mostani tulajdonos a vevő kérésére teljesen újjáépíti, egy megállapodott összegért a vételár felett.
Jelenleg a fűtést klíma adja, víz, szennyvíz, villany van, de a gázcsonk az udvarban van. Parkolni a garázsban, és az udvarban is lehet.
Közvetlen környezetében minden kiszolgáló egység megtalálható: iskola 700 méter; pizzéria, Tom Market, pékség, hentes 450 méter; OTP BANK, fagyizó és a gyógyszertár 600 méter távolságra van.
Elhelyezkedése miatt kiváló választás lehet befektetőknek, családoknak és időseknek egyaránt!
A ház tehermentes, a teljes vételár megfizetését követően azonnal birtokba vehető!
Refenciszám: M276199

22900000 Ft

Referencia szám: M276199
További adatok
Telekterület: 307 m2
Kert mérete: -
Erkély mérete: -
Felszereltség: -
Parkolás: garázs
Kilátás: -
Egyéb extrák:  
Hirdető adatai
Hirdető neve: otpip.hu - Pécs Rákóczi út 19 - OTP Ingatlanpont Iroda
Kapcsolattartó: Vincze László György
Hirdető telefonszáma: +36-20-938-4141
Honlap: -
 
Üzenetet küldhet a hirdetőnek, árajánlatot tehet az ingatlanra:
Az Ön neve:
Az Ön e-mail címe:
Üzenet: