Ingatlan Televízió
Ingatlan Televízió
további hirdetések
adatlap bezárása

Nyúl 
 

Hivatkozási szám: 5708730
Ingatlan adatai
Irányár: 82 900 000 Ft
Típus: ház
Kategória: eladó
Alapterület: 110 m2
Fűtés: gáz (cirko)
Állapota: új
Szobák száma: 5
Építés éve: 2025
Szintek száma: -
Részletes leírás
Győr közelében Nyúlon, újonnan épülő, igényes kialakítású, tégla építésű családi ház leköthető.

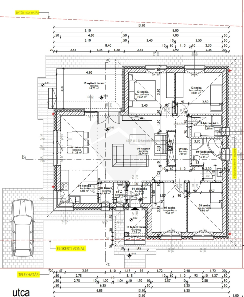
A nappali + négy szobával(vagy akár több szobával) rendelkező ingatlan alapterülete nettó 110 m2, mely igény szerint módosítható.
A praktikusan tervezett házban a szobákon kívül tágas és napfényes amerikai konyhás nappali, gardrób, kamra, szélfogó, közlekedő, fürdőszoba+wc, háztartási helyiség és egy külön mellékhelyiség is kialakításra kerül.
Az élhető méretű telek összesen 850 m2-es, mely 30%-ban beépíthető.
A feltüntetett vételár az emelt szintű fűtés kész árat és a telek árát tartalmazza, de igény esetén kulcsra kész befejezésre is van lehetőség!
Továbbá az ár tartalmazza a komplett tervezői díjat(gépészet, metszetek, statika, energetika, engedélyek), plusz egy inverteres(hűtő-fűtő) klímát!
A jelenlegi árajánlatban az otthon melegéről gáz-cirkó kazán gondoskodik, padlófűtéses hőleadással, de a fűtésrendszer is az építtető igényei alapján módosítható!
A részletes műszaki leírást és az Építőipari cég weboldalát kérésére e-mailben elküldöm.

Más az elképzelése? Válassza ki Ön a saját elképzeléseinek megfelelő alaprajzot!
Amennyiben teljesen egyedi tervezést szeretne, az is lehetséges!
A képek látványtervek.

Jól átgondolt tervezés, megfelelő szakmai tudás és háttér garantálja a MINŐSÉGI OTTHON megvalósítását!

További kérdés esetén állok rendelkezésére!
Amennyiben megbízható építtetőt szeretne, referenciamunkákkal, minőségi anyagokkal és kivitelezéssel, hívjon bizalommal akár hétvégén is!
Teljes körű ügyintézéssel:
- Ügyvéd
- Biztosítás
- Hiteltanácsadás
- Generálkivitelezés
- Ingatlanértékesítés
- Teljeskörű ingatlanfelújítás
- CSOK, babaváró, áfa visszaigénylés - állunk rendelkezésére!
További adatok
Telekterület: 850 m2
Kert mérete: 850 m2
Erkély mérete: -
Felszereltség: -
Parkolás: -
Kilátás: kertre néző
Egyéb extrák:  
Hirdető adatai
Hirdető neve: B&B Ingatlan powered by RH tanácsadói
Kapcsolattartó: Balogh János
Hirdető telefonszáma: +36 30 651 4841
Honlap: -
 
Üzenetet küldhet a hirdetőnek, árajánlatot tehet az ingatlanra:
Az Ön neve:
Az Ön e-mail címe:
Üzenet: