Ingatlan Televízió
Ingatlan Televízió
további hirdetések
adatlap bezárása

Siófok 
 

Hivatkozási szám: 5714631
Ingatlan adatai
Irányár: 495 000 000 Ft
Típus: kereskedelmi/ipari ingatlan
Kategória: eladó
Alapterület: 1 100 m2
Fűtés: -
Állapota: -
Szobák száma: -
Építés éve: 2021
Szintek száma: -
Részletes leírás
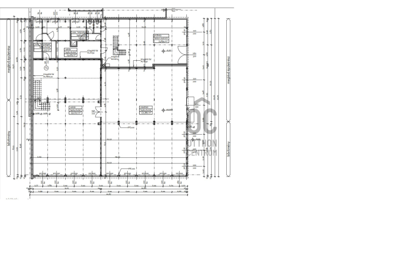
Siófok forgalmas iparterületén, teherautóval is jól megközelíthető, rakodható 2094 nm-es terület eladó.

A telken 1100 nm-es felépítmény található, ami 4 egységből áll, melyek önállóan működnek. Az épületet jelenleg bérlő és a tulajdonos is hasznosítja.

Az ingatlant egyedi elképzelései szerint átalakíthatja, vagy bérlőkkel fix profitot realizálhat.

A telek kereskedelmi, szolgáltató gazdasági terület (Gksz) besorolású és a lenti beépítési szabályok vonatkozna rá:

- 60% beépíthető; 10 méteres építmény magassággal,
- nem jelentősen zavaró hatású gazdasági tevékenységi célú épületek,
- a gazdasági tevékenységi célú épületen belül a tulajdonos, a használó és a személyzet számára szolgáló lakások,
- igazgatási és egyéb irodaépületek,
- parkolóházak, üzemanyagtöltők,
- sportépítmények,
- vendéglátó építmények (de csak a már így kialakult tömbökben),
valamint kivételesen: egyházi, oktatási, egészségügyi, szociális épületek, egyéb közösségi szórakoztató épületek, továbbá (de csak a már így kialakult tömbökben) lakó- és szállásépületek

Üzletnek, befektetésnek kiválóan alkalmas!

Ha kíváncsi a számokra, hívjon!
495 000 000Ft+ÁFA
További adatok
Telekterület: -
Kert mérete: -
Erkély mérete: -
Felszereltség: -
Parkolás: -
Kilátás: -
Egyéb extrák:  
Hirdető adatai
Hirdető neve: Otthon Centrum
Kapcsolattartó: Gáborjányi Attila
Hirdető telefonszáma: +36 70 716 9491
Honlap: -
 
Üzenetet küldhet a hirdetőnek, árajánlatot tehet az ingatlanra:
Az Ön neve:
Az Ön e-mail címe:
Üzenet: