Ingatlan Televízió
Ingatlan Televízió
további hirdetések
adatlap bezárása

Budapest, VIII.kerület 
József körút 

Hivatkozási szám: 5736363
Ingatlan adatai
Irányár: 79 000 000 Ft
Típus: egyéb ingatlan
Kategória: eladó
Alapterület: 87 m2
Fűtés: -
Állapota: felújított
Szobák száma: -
Építés éve: -
Szintek száma: -
Részletes leírás
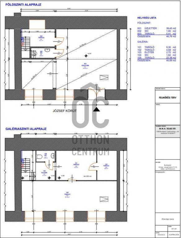
VIII. kerület, Corvin negyed villamosmegállóban kínálom eladásra az összesen 87 nm területű, utcai bejárattal és portálokkal rendelkező üzlethelyiséget.
Az ingatlan belső kettő szintes, földszinti területe 46 nm, emeleti része 41 nm, nyílászárók cserélve lettek.
Alkalmas lehet néhány vendéglátói tevékenységre, szépségiparban tevékenykedőknek, pékségnek, pizzázónak.
Telefonon állok rendelkezésre ha lenne kérdése és szeretné megtekinteni a helyiséget.
További adatok
Telekterület: -
Kert mérete: -
Erkély mérete: -
Felszereltség: -
Parkolás: -
Kilátás: -
Egyéb extrák:  
Hirdető adatai
Hirdető neve: oc.hu - VIII. kerület - József körút
Kapcsolattartó: Törköly Zoltán
Hirdető telefonszáma: +36704693076
Honlap: -
 
Üzenetet küldhet a hirdetőnek, árajánlatot tehet az ingatlanra:
Az Ön neve:
Az Ön e-mail címe:
Üzenet: