Ingatlan Televízió
Ingatlan Televízió
további hirdetések
adatlap bezárása

Tiszaszentimre 
 

Hivatkozási szám: 5765862
Ingatlan adatai
Irányár: 14 900 000 Ft
Típus: ház
Kategória: eladó
Alapterület: 77 m2
Fűtés: gáz (konvektor)
Állapota: felújított
Szobák száma: 3
Építés éve: 1965
Szintek száma: 1
Részletes leírás
A Tisza-tó fővárosa, Tiszafüred közelében található kisközségben, Tiszaszentimrén, csendes utcában kínálok eladásra egy autentikus családi házat

A település rendelkezik mindazon középületekkel, melyek az oktatáshoz, a művelődéshez, az egészségügyhöz és szociális ellátáshoz nélkülözhetetlenek. Minden utca szilárd burkolattal van ellátva. A kikapcsolódásra vágyóknak, a vízi sport szerelmeseinek, a horgászat kedvelőinek a Tisza-tó közelsége nyújt lehetőséget. A kirándulni vágyók egy órán belül gyönyörködhetnek a Hortobágy-puszta végtelenségében, vagy túrázhatnak az Északi-középhegység erdeiben. A gyógyulni vágyók felkereshetik Tiszafüred, Tiszaörs, Berekfürdő gyógyító hatású meleg vizes strandjait.

Közel a Tisza-tóhoz, mégis távol annak zajától, csendes, biztonságos település várja a horgászni, vadászni, pihenni vágyó vendégeket.
A környező utcákban és a szomszédságban is már holland és német tulajdonosok vásároltak maguknak ingatlant üdülés céljából.
Az udvar és a kert rendezett szépen karban tartott állapotban várja leendő új gazdáját.
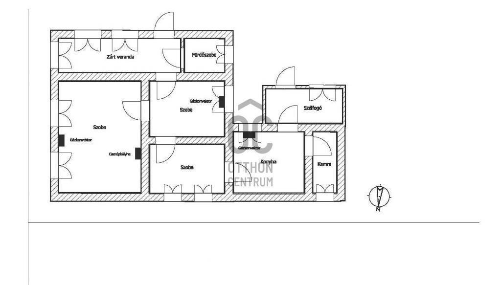
A karban tartott épület vályogból épült. A beépített veranda téglából készült.
Az épületben három szoba, és egy fürdőszoba lett kialakítva, valamint konyha és kamra is van.
A fűtés gázkonvektorokkal lett megoldva, de található egy cserépkályha is az épületben.

Amennyiben további felvilágosítást szeretne, keressen bizalommal!

Teljes körű hitel ügyintézéssel és az ingatlan adásvételéhez szükséges ügyvédi háttérrel is állok vevőink rendelkezésére.
További adatok
Telekterület: 1 099 m2
Kert mérete: -
Erkély mérete: -
Felszereltség: -
Parkolás: -
Kilátás: -
Egyéb extrák:  
Hirdető adatai
Hirdető neve: oc.hu - Tiszafüred
Kapcsolattartó: Lang Zsolt
Hirdető telefonszáma: +36704123651
Honlap: -
 
Üzenetet küldhet a hirdetőnek, árajánlatot tehet az ingatlanra:
Az Ön neve:
Az Ön e-mail címe:
Üzenet: