Ingatlan Televízió
Ingatlan Televízió
további hirdetések
adatlap bezárása

Mezőszilas 
 

Hivatkozási szám: 5769576
Ingatlan adatai
Irányár: 52 900 000 Ft
Típus: kereskedelmi/ipari ingatlan
Kategória: eladó
Alapterület: 230 m2
Fűtés: -
Állapota: -
Szobák száma: -
Építés éve: 1950
Szintek száma: -
Részletes leírás
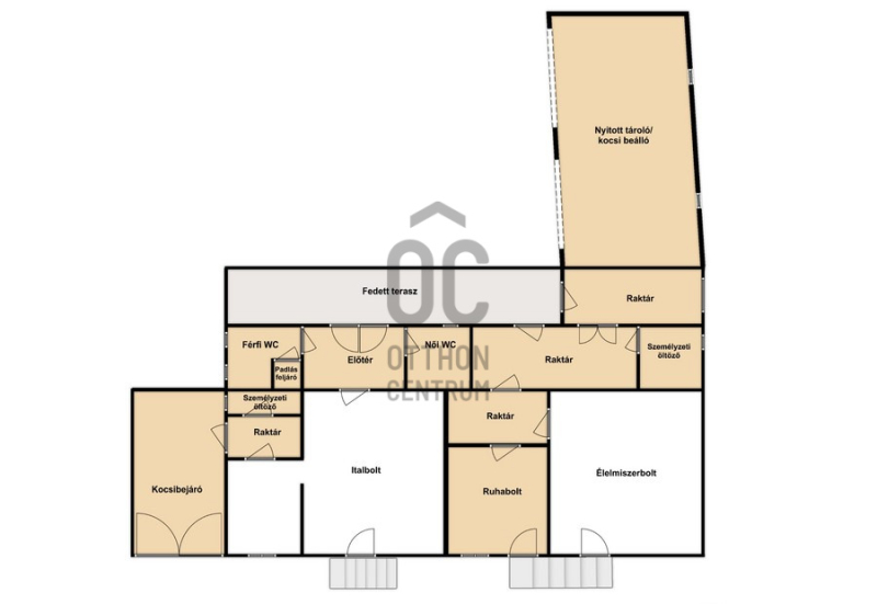
Frekventált helyen lévő, évtizedek óta működő, állandó vevőkörrel rendelkező, három elkülönített egységből álló kereskedelmi ingatlan
(élelmiszerbolt, ruhabolt és italbolt) ELADÓVÁ vált a Balatontól 30 kilométerre, a Fejér vármegyei Mezőszilason.
Alkalmas üzletnek, telephelynek, vagy cégközpontnak. A 230 nm alapterületű épület egy része lakás céljára is használható.
Az épülethez 60 nm alapterületű fedett tároló, továbbá 2119 nm alapterületű udvar és kert tartozik.
A berendezési tárgyak és az árukészlet megbeszélés tárgyát képezik. Igény esetén a boltot működtető gazdasági társaság (Kft.) is átvehető.
Az ingatlan összközműves, áram: 3 x 25 A, gázkonvektoros fűtés, klimatizált helyiségek, rendezett udvar és kert.
Több raktár helyiség, a hátsó részből akár, egy külön bejáratú lakás is kialakítható.
Székesfehérvár 50 km, Sárbogárd 18 km, Dég 9 km.

Jöjjön és nézzük meg együtt!

Ha bármi kérdése van az ingatlannal kapcsolatban vagy az ön ingatlanát el kell adni a vásárláshoz, hívjon bizalommal.

Amennyiben hitelre van szüksége, az Otthon Centrum az ország egyik legnagyobb és legmegbízhatóbb hitelközvetítőjeként, teljes körű és díjmentes hitel ügyintézéssel áll rendelkezésére.
Kérje személyre szabott ajánlatunkat!
További adatok
Telekterület: -
Kert mérete: -
Erkély mérete: -
Felszereltség: -
Parkolás: -
Kilátás: -
Egyéb extrák:  
Hirdető adatai
Hirdető neve: Otthon Centrum
Kapcsolattartó: Dusnoki Éva
Hirdető telefonszáma: +36 70 461 9031
Honlap: -
 
Üzenetet küldhet a hirdetőnek, árajánlatot tehet az ingatlanra:
Az Ön neve:
Az Ön e-mail címe:
Üzenet: