Ingatlan Televízió
Ingatlan Televízió
további hirdetések
adatlap bezárása

Kecskemét 
 

Hivatkozási szám: 5781047
Ingatlan adatai
Irányár: 379 900 000 Ft
Típus: lakás (tégla)
Kategória: eladó
Alapterület: 590 m2
Fűtés: gáz (cirko)
Állapota: felújított
Szobák száma: -
Építés éve: -
Szintek száma: -
Részletes leírás
ELADÓ Kecskeméten a Mindszenti krt.-ról könnyen megközelíthető, igényesen felújított telephely raktárral!

Jellemzői:
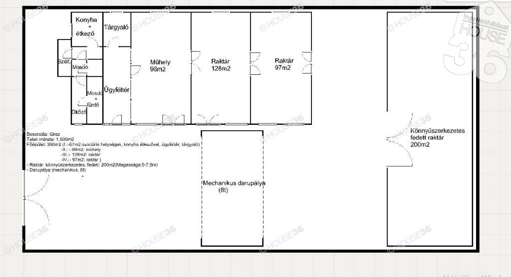
- Besorolás: Gksz
- Telek mérete: 1.500 m2
- Főépület: 390 m2 (I.: - 67 m2: szociális helységek, konyha, ügyféltér, tárgyaló
II.: - 98 m2: műhely
III.: - 128 m2: raktár
IV.: - 97 m2: raktár)
- Raktár: könnyűszerkezetes, fedett : 200 m2 (Magassága:5-7,5 m)
- Daru pálya: mechanikus (8t)
- Teljesen leburkolt terület
- Elektromos kapu
- Kamera rendszer + riasztó
- 2022-ben műszaki (vezeték-,nyílászáró- és tetőcsere, szigetelés, fűtéskorszerűsítés)- és esztétikai felújítások (burkolat- és konyhabútorcsere, fürdőszoba ill.festés)
- Klimatizált helyiségek

Az eladási ár az ÁFÁ-t nem tartalmazza!

Figyelem az adatlap megbízónktól kapott adatok alapján készült, pontosságáért felelősséget nem tudunk vállalni! Szolgáltatásaink Kereső ügyfeleink számára INGYENESEK! Amennyiben eladó-kiadó ingatlana van vagy finanszírozási megoldást keres, hívjon, megtaláljuk a legjobb lehetőséget Önnek! A HOUSE36 kínálatában található összes ingatlannal kapcsolatban tudok felvilágosítást nyújtani!
Hívjon bizalommal!
Az iroda legfrissebb, aktuális kínálatát a HOUSE36 saját weboldalán találja!
További adatok
Telekterület: -
Kert mérete: -
Erkély mérete: -
Felszereltség: -
Parkolás: lakáshoz van kültéri parkoló
Kilátás: -
Egyéb extrák:  
Hirdető adatai
Hirdető neve: h36.hu - HOUSE36 Ingatlanhálózat
Kapcsolattartó: Fricskáné Oltai Katalin
Hirdető telefonszáma: +36307248695
Honlap: -
 
Üzenetet küldhet a hirdetőnek, árajánlatot tehet az ingatlanra:
Az Ön neve:
Az Ön e-mail címe:
Üzenet: