Ingatlan Televízió
Ingatlan Televízió
további hirdetések
adatlap bezárása

Hatvan 
 

Hivatkozási szám: 5781262
Ingatlan adatai
Irányár: 73 900 000 Ft
Típus: ház
Kategória: eladó
Alapterület: 80 m2
Fűtés: -
Állapota: új
Szobák száma: 2+1
Építés éve: 2025
Szintek száma: -
Részletes leírás
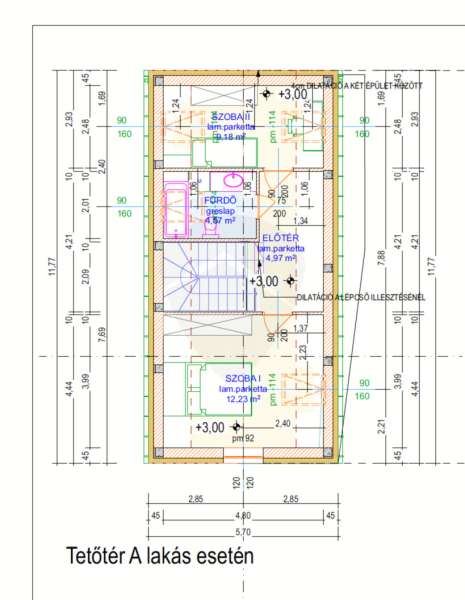
*** Újépítésű igényes sorházi lakás saját kertrésszel eladó! ***

Hatvan központjában a Dobó téren kínálunk eladásra 3 db nettó 80 m2-es sorházi lakást, saját kertrésszel. A tetőtérben kerülnek kialakításra a hálószobák. A kellemes nyári-téli hőérzetről HŐSZIVATTYÚS rendszer fog gondoskodni. Az épület modern technológiával épül, ezáltal kedvező ENERGIAHATÉKONYSÁGÚ lesz. Minden ingatlanhoz saját térkövezett kocsibeálló tartozik és egy ideális méretű TERASZ kerül kialakításra. A beruházó/kivitelező megbízható, Hatvan környékén több referenciával is rendelkezik.

A lakás (utcafronti) - 49+31 m2, nappali + konyha, 2 hálószoba, fürdő, wc, háztartási helyiségekből áll. - Irányár: 73.900.000 Ft
B lakás (2. ingatlan) - 49+31 m2, nappali + konyha, 2 hálószoba, fürdő, wc, háztartási helyiségekből áll. - (Eladva)
C lakás (3. ingatlan)- 55 m2, nappali + konyha, 2 hálószoba, fürdő, wc, háztartási helyiségekből áll. - (Eladva)
D lakás (utolsó). - 49+31 m2, nappali + konyha, 2 hálószoba, fürdő, wc, háztartási helyiségekből áll. - (Eladva)

Közintézmények, iskolák, üzletek, kórház karnyújtásnyira találhatóak, illetve a korszerű kivitelezése miatt hosszútávon értékálló befektetés lesz.

Várható befejezés 2026. Január - Február!

További információért hívjon bizalommal!
További adatok
Telekterület: 250 m2
Kert mérete: 250 m2
Erkély mérete: 21 m2
Felszereltség: -
Parkolás: -
Kilátás: kertre néző
Egyéb extrák:  
Hirdető adatai
Hirdető neve: Ingatlanmentor powered by Rock Home
Kapcsolattartó: Horváth Tibor
Hirdető telefonszáma: +36 70 467 6871
Honlap: -
 
Üzenetet küldhet a hirdetőnek, árajánlatot tehet az ingatlanra:
Az Ön neve:
Az Ön e-mail címe:
Üzenet: