Ingatlan Televízió
Ingatlan Televízió
további hirdetések
adatlap bezárása

Hajdúsámson 
 

Hivatkozási szám: 5783801
Ingatlan adatai
Irányár: 64 890 000 Ft
Típus: ház
Kategória: eladó
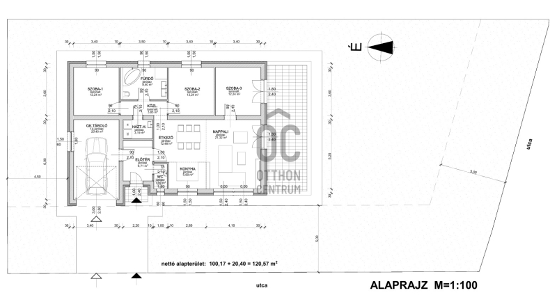
Alapterület: 100 m2
Fűtés: gáz (cirko)
Állapota: új
Szobák száma: 4
Építés éve: 2025
Szintek száma: -
Részletes leírás
Várja a jó lehetőséget?
Keres már egy ideje, de nem találta meg a mindenben tökéleteset?
Kezd belefáradni?

Elcsépelt kifejezés, hogy \\\"csapjon le rá, mert elviszi más\\\", de itt tényleg nincs idő sokat gondolkozni, mert ez kb. semeddig nem lesz a piacon!
Önálló családi házat kínálok Önnek mindössze 64,9 MFt-ért.

És, hogy mit kap ennyiért?
- új építésű ingatlan, mely 12 hónap alatt készen lesz.
- 100 nm hasznos alapterület
- amerikai-konyha + 3 háló
- masszív 30 N+F téglafalazat
- rendkívül energiatakarékos ingatlan (15 cm szigetelés a homlokzaton, 30 cm a födémen)
- padlófűtés minden helyiségben
- turbós kombi gázkazán
- 6 légkamrás, 3 rétegű üvegezésű nyílászárók
- LED világítás kívül és belül egyaránt
- 20,4 nm-es garázs
- 720 nm-es telek
- barna színű nemesvakolat, kültéri falicsempe burkolattal (igazán esztétikus megjelenés)
- szabadon variálható elrendezés

Sorolhatnám sokáig, de a lényeg, hogy ennyi pénzért kap egy teljesen kulcsrakész állapotot, és természetesen benne van az árban a telek is.
Ha valami, akkor ez egy kihagyhatatlan lehetőség és bánni fogja, ha nem él vele...

Ami még nagyon fontos, hogy a lehetőségeknek csak az Ön képzelete szabhat határt.
Ha kisebbet, vagy nagyobbat szeretne...
Ha bármilyen extrát szeretne beletenni, vagy elvenni...
Ha módosítana a helyiségkiosztáson, a színeken, a megjelenésen...
Álmodja meg és megvalósul!

Hívjon, és minden felmerülő kérdésére válaszolok.
További adatok
Telekterület: 720 m2
Kert mérete: 720 m2
Erkély mérete: 15 m2
Felszereltség: -
Parkolás: -
Kilátás: -
Egyéb extrák:  
Hirdető adatai
Hirdető neve: Otthon Centrum
Kapcsolattartó: Apró Ferenc
Hirdető telefonszáma: +36 70 469 3916
Honlap: -
 
Üzenetet küldhet a hirdetőnek, árajánlatot tehet az ingatlanra:
Az Ön neve:
Az Ön e-mail címe:
Üzenet: