Ingatlan Televízió
Ingatlan Televízió
további hirdetések
adatlap bezárása

Újkenéz 
 

Hivatkozási szám: 5785917
Ingatlan adatai
Irányár: 13 500 000 Ft
Típus: ház
Kategória: eladó
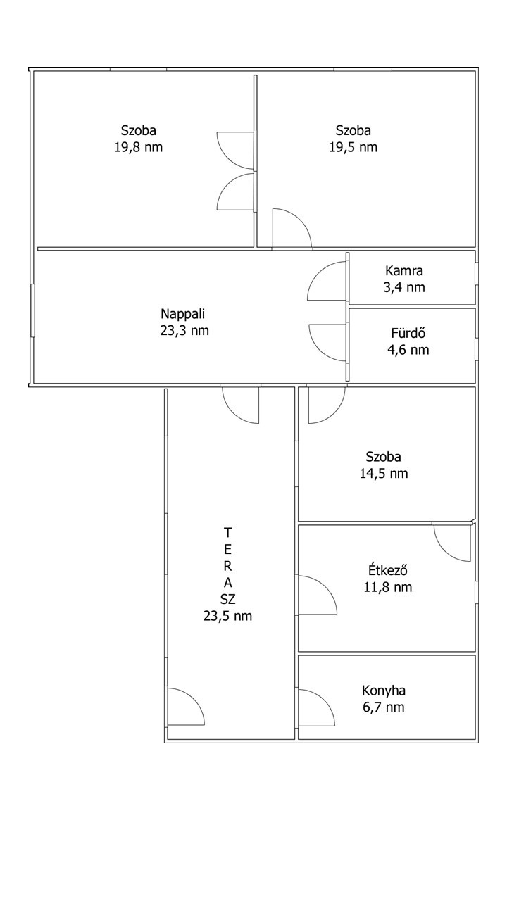
Alapterület: 125 m2
Fűtés: gáz (konvektor)
Állapota: -
Szobák száma: 3
Építés éve: 1982
Szintek száma: -
Részletes leírás
Újkenéz központjában kínálok eladásra egy1980 az évek táján épült családi házat. Az ingatlan beton alapra téglából épült, tetőrendszere lemezzel fedett. Sok évvel ezelőtt az ingatlan üveggyapot és műanyag lambéria szigetelést kapott, Belsőjében is karbantartott, bár frissítés modernizálás előnyösebbé teszi, de így is egy remek elosztású, tágas, napfényes otthona lehet leendő tulajdonosának. Elosztásában 3 szoba, nappali, konyha, étkező, kamra, fürdőszoba és egy hatalmas zárt terasz . Alaprajzában jól átjárható, kényelmesen élhető ingatlan. Nyílászárói még hagyományos fa kivitelezésűek, fűtése gázkonvektorral megoldott, padlózata kemény fa parketta, és járólap borításúak. Udvara rendezett, nagy fákkal , zöld területtel parkosított melyen garázs, tárolók, nyárikonyha, pince, fúratott kút, ipari áram, és egy jó állapotú üvegház is megtalálható. Azonnal költözhető. Teljes közművel rendelkezik, teher mentes. Ami még előnyösebbé teszi, hogy tartozik hozzá még 2 db külön Helyrajzi számon lévő építési telek is, mely a vételár részét képezi. Elhelyezkedését tekintve a falu központjában található, így az egyik legideálisabb ingatlan lehet az Öné ! Amennyiben kérdése lenne, kérem keressen TELEFONON, megtekintés előre egyeztetett időpontban . Ne hagyja ki ezt a remek ajánlatot !!!
További adatok
Telekterület: 1 633 m2
Kert mérete: 1 633 m2
Erkély mérete: 24 m2
Felszereltség: -
Parkolás: -
Kilátás: -
Egyéb extrák:  
Hirdető adatai
Hirdető neve: Otthon Centrum
Kapcsolattartó: Pocsai Katalin
Hirdető telefonszáma: +36 70 469 3481
Honlap: -
 
Üzenetet küldhet a hirdetőnek, árajánlatot tehet az ingatlanra:
Az Ön neve:
Az Ön e-mail címe:
Üzenet: