Ingatlan Televízió
Ingatlan Televízió
további hirdetések
adatlap bezárása

Tiszafüred 
 

Hivatkozási szám: 5796005
Ingatlan adatai
Irányár: 42 000 000 Ft
Típus: ház
Kategória: eladó
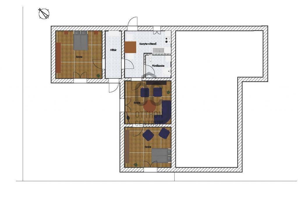
Alapterület: 86 m2
Fűtés: gáz (konvektor)
Állapota: felújított
Szobák száma: 3
Építés éve: 1965
Szintek száma: 1
Részletes leírás
Tiszafüred város az Észak-alföldi régióban, Jász-Nagykun-Szolnok vármegye Tiszafüredi járásában. A Tisza-tó turisztikai régió központja, a „Tisza-tó fővárosa”. Az ingatlanok keresettsége és forgalma okán a média „Új Balatonként” is említi.

Tiszafüred belvárosában kívül belül felújított három szobás 86 nm-es összközműves azonnal költözhető családi házat kínálok eladásra.
Az épület vegyes falazattal készült, A vakolat cserére került a felújítés alkalmából, új dryvit hálóval és nemes vakolattal. A villanyhálózat és ivóvízhálózat, szennyvízhálózat vezetékei és csövei cserére kerültek.
Az ingatlan nyílászárói le lettek cserélve műanyag hőszigetelt típusra, az ablakokon szunyoghálóval és redőnnyel lettek felszerelve. A belső ajtók is le lettek cserélve új fa ajtók lettek beépítve. A helységek falai glettelve és frissen festve lettek. Új burkolat lett minden helységben, újra burkolt és új szaniterekkel ellátott fürdőszoba lett kialakítva.
A konyha bútorzata is új.
A fűtés gázkonvektorokkal a melegvízellátás villanybojlerrel történik.
A ház egy ikerház nagyobbik fele, kerítéssel elválasztva. Az épület körül a járda térkövezve. A telek mérete 410nm.
Az ingatlantól pár perces sétára található a piac a boltok, orvosi rendelő, győgyszertár, iskolák, óvodák.

Az ingatlan tehermentes, rendezett tulajdonviszonyokkal rendelkezik.
Az eladásra kínált ingatlan és állandó lakhatásra vagy apartmanként kiadásra is alkalmas.
Ezt látnia kell! Alkalmas a családtámogatási rendszer kínálta lehetőségek és ehhez kapcsolódó pályázati lehetőségek igénybevételére!
Felkeltettem az érdeklődését? Ne habozzon! Amennyiben további felvilágosítást szeretne, keressen bizalommal!

Teljes körű hitel ügyintézéssel és az ingatlan adásvételéhez szükséges ügyvédi háttérrel is állok a vevő rendelkezésére.
További információért és a megtekintésért kérem, hívjon telefonon!
További adatok
Telekterület: 410 m2
Kert mérete: -
Erkély mérete: -
Felszereltség: -
Parkolás: -
Kilátás: -
Egyéb extrák:  
Hirdető adatai
Hirdető neve: oc.hu - Tiszafüred
Kapcsolattartó: Langné Kiss Piroska
Hirdető telefonszáma: +36707169891
Honlap: -
 
Üzenetet küldhet a hirdetőnek, árajánlatot tehet az ingatlanra:
Az Ön neve:
Az Ön e-mail címe:
Üzenet: