Ingatlan Televízió
Ingatlan Televízió
további hirdetések
adatlap bezárása

Kecskemét 
Alsószéktó tanya 

Hivatkozási szám: 5796096
Ingatlan adatai
Irányár: 63 900 000 Ft
Típus: lakás (tégla)
Kategória: eladó
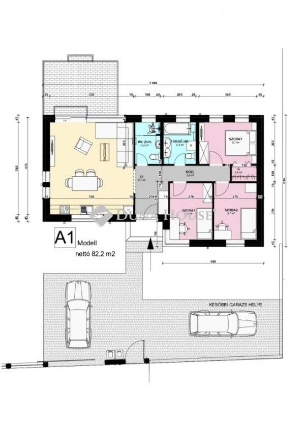
Alapterület: 82 m2
Fűtés: -
Állapota: új
Szobák száma: 4
Építés éve: 2024
Szintek száma: 1
Részletes leírás
Kecskemét fejlődő, frekventált részén eladó új építésű kivitelezés telekkel és közmű ügyintézéssel. A telek jól megközelíthető a Green Lakópark közvetlen közelében. A környék fejlődésének köszönhetően rengeteg új ház között nyújt lehetőséget építkezni vágyóknak, befektetőknek akár teljesen új ikerház építési projektre.Villanyközmű a telken van, gáz a telekhatáron városi víz pedig a következő telek sarkánál.Az elhelyezkedés tökéletes választás olyan családok számára, akik a modern, új építésű házak között keresik leendő otthonukat.Műszaki Tartalom:- Teherhordó falazat: Wienerberger Porotherm 30 X-Therm tégla- Válaszfal: Wienerberger Porotherm 10 tégla - Homlokzati hőszigetelés: 15 cm EPS - Tetőhéjazat választható: Bramac, Leier vagy Terrán tetőcserép 11 színben- Külső nyílászárók: 3 üvegrétegű prémium külső nyílászárók- Hidegburkolat választható: 7.500 Ft / m2 - ig- Meleg burkolat választható: 6.000 Ft / m2 - ig- Szaniterek választható: (kád, zuhanykabin, csaptelep stb.) 580.000 Ft / 100 m2 - ig- Bejárati ajtó választható: 250.000 Ft-ig- Teraszajtó választható: 250.000 Ft-ig- Beltéri ajtó választható: 90.000 Ft-ig- Gépészet választható: Bosch levegő-víz hőszivattyú padlófűtéssel + Inverteres KlímaA feltüntetett árak a hirdetett kivitelezésre és tervekre vonatkoznak. Egyedi módosítás és megrendelés esetén a végösszeg változhat!
További adatok
Telekterület: 1 006 m2
Kert mérete: -
Erkély mérete: 15 m2
Felszereltség: -
Parkolás: -
Kilátás: -
Egyéb extrák:  
Hirdető adatai
Hirdető neve: dh.hu - Kecskemét, Balaton utca
Kapcsolattartó: Susán Péter
Hirdető telefonszáma: +36705766637
Honlap: -
 
Üzenetet küldhet a hirdetőnek, árajánlatot tehet az ingatlanra:
Az Ön neve:
Az Ön e-mail címe:
Üzenet: