Ingatlan Televízió
Ingatlan Televízió
további hirdetések
adatlap bezárása

Nagyréde 
Szabadság út 

Hivatkozási szám: 5796382
Ingatlan adatai
Irányár: 21 500 000 Ft
Típus: ház
Kategória: eladó
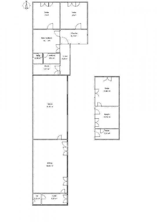
Alapterület: 66 m2
Fűtés: gáz (konvektor)
Állapota: felújított
Szobák száma: 2
Építés éve: 1960
Szintek száma: 1
Részletes leírás
Heves megyében, Gyöngyöstől 6 km-re, Nagyrédén, családi ház eladó. A településről Budapest alig 45 perces autózással elérhető.
A ház a falu fő utcájában, központ közeli helyen áll. A 4000m2-es telek jelentős része egy gazdálkodásra is alkalmas hátsó területet foglal magába. A 66 m2-es fő épület tipikus kádár kocka elrendezésű, ebből átjárás van a hosszanti vonalában található, 45m2-es garázsba és az összkomfortos, jelenleg műhelyként használt házrészekbe. Az ipari gáz és áram elegendő kisebb vállalkozás energia igényéhez. A melléképületbe minden közmű bevezetve, akár külön lakrésszé alakítható.
A lakás fűtése gázkonvektorral megoldott. A meleg vizet villanybojler állítja elő.
Alkalmas azonnali beköltözésre, de sok ötletet kínál a terek átrendezésére is. Ebben szakmai tudásommal nyújthatok segítséget.
Lehetőséget biztosítok az ingatlan 3D-s bemutatására, megbeszélhetjük az esetleges áttervezést.
A település falusi CSOK támogatás rendszerében szerepel, amely a vevőnek jelentős anyagi segítség lehet .
Kiváló ár-értékű ingatlan, gyors döntéssel az Öné lehet. Ne késlekedjen, hívjon, ha többet szeretne róla tudni.
További adatok
Telekterület: 4 017 m2
Kert mérete: -
Erkély mérete: -
Felszereltség: -
Parkolás: garázs
Kilátás: -
Egyéb extrák:  
Hirdető adatai
Hirdető neve: otpip.hu - Eger Törvényház utca 4 - OTP Ingatlanpont Iroda
Kapcsolattartó: Sánta István
Hirdető telefonszáma: +36-30-903-5628
Honlap: -
 
Üzenetet küldhet a hirdetőnek, árajánlatot tehet az ingatlanra:
Az Ön neve:
Az Ön e-mail címe:
Üzenet: