Ingatlan Televízió
Ingatlan Televízió
további hirdetések
adatlap bezárása

Szentes 
 

Hivatkozási szám: 5798337
Ingatlan adatai
Irányár: 60 000 000 Ft
Típus: ház
Kategória: eladó
Alapterület: 350 m2
Fűtés: gáz (cirko)
Állapota: felújított
Szobák száma: 16
Építés éve: 1902
Szintek száma: 1
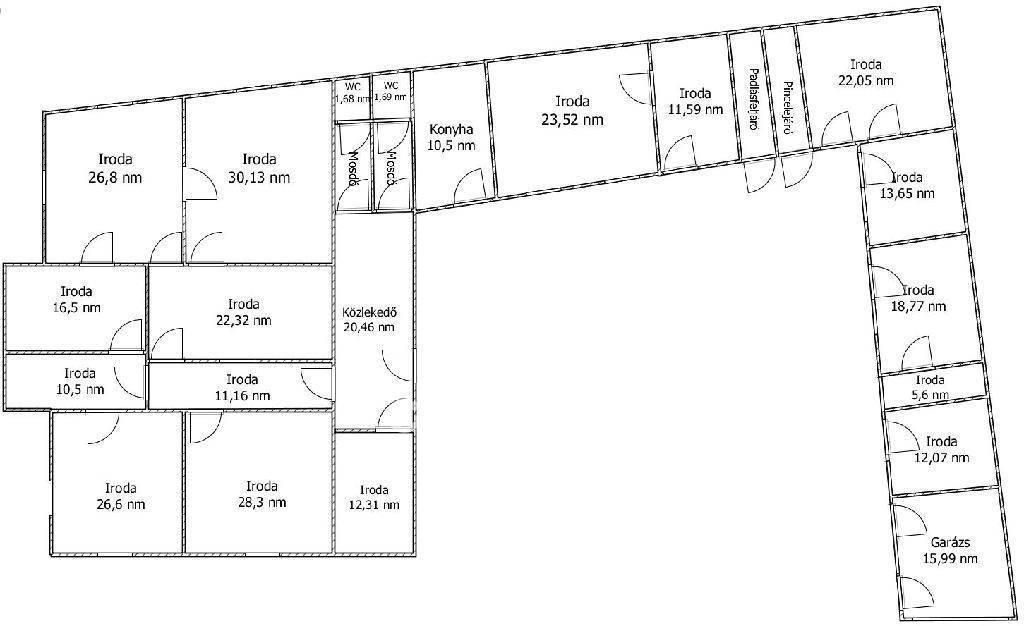
Részletes leírás
*** CSAK AZ OTP INGATLANPONT KÍNÁLATÁBAN *** ELADÓ Csongrád-Csanád vármegyében Szentesen egy frekventált elhelyezkedésű irodaház. Az 1171 nm-es telken elhelyezkedő 350 nm-es tégla épületben 15 irodahelyiség, konyha, 2 mellékhelyiség található. A 152 nm-es udvaron két autó számára van nyílt kocsibeálló és további 1 autónak garázs. A fűtést gázkazán biztosítja radiátoros hőleadással. Az ingatlan kiválóan alkalmas vállalkozás működtetésére, irodák bérbeadására, vagy átalakítható lakóházzá. Több lakás kialakítására ad lehetőséget. Amennyiben az OTP Ingatlanpont kínálatából választ, számíthat szakmai támogatásunkra a teljes vételi folyamat során az adásvételi szerződés megkötésétől a hitel-ügyintézésen át az ingatlan átadásáig. Az OTP Ingatlanpont kedvezményes pénzügyi konstrukciókkal áll ügyfelei rendelkezésére, és VIP-szolgáltatást nyújt az OTP-hiteltermékek , valamint CSOK-ügyintézésben. Kedvező hitelajánlatokkal (BABAVÁRÓ hitel, piaci hitel, és szabadfelhasználású hitel) várjuk jelentkezését. Számos konstrukció közül választhatnak. Irodáink Szentes, Petőfi utca 12. A buszmegálló felől, és Csongrád, Fő utca 54. szám alatt várja a személyes érdeklődőket. ***VÁLASSZUK KI EGYÜTT AZ ÖNNEK LEGMEGFELELŐBB AJÁNLATOT! BANKI SORBAN ÁLLÁS NÉLKÜL! ***
Érdeklődni: Szlovák Ibolya +36704550993

Referencia szám: M296842-ITV
További adatok
Telekterület: 1 171 m2
Kert mérete: -
Erkély mérete: -
Felszereltség: -
Parkolás: garázs
Kilátás: -
Egyéb extrák:  
Hirdető adatai
Hirdető neve: otpip.hu - Csongrád Fő utca 54 - OTP Ingatlanpont Iroda
Kapcsolattartó: Szlovák Ibolya
Hirdető telefonszáma: +36-70-455-0993
Honlap: -
 
Üzenetet küldhet a hirdetőnek, árajánlatot tehet az ingatlanra:
Az Ön neve:
Az Ön e-mail címe:
Üzenet: