Ingatlan Televízió
Ingatlan Televízió
további hirdetések
adatlap bezárása

Budapest, VI.kerület 
 

Hivatkozási szám: 5798500
Ingatlan adatai
Irányár: 128 279 550 Ft
Típus: lakás (tégla)
Kategória: eladó
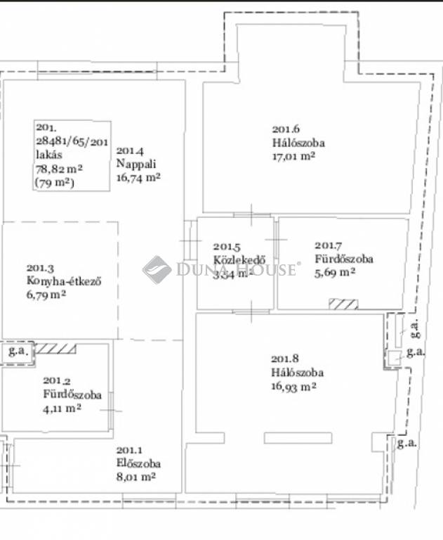
Alapterület: 79 m2
Fűtés: házközponti egyedi méréssel
Állapota: új
Szobák száma: 3
Építés éve: 2025
Szintek száma: 1
Részletes leírás
***Budapest szívében, a 6. kerületben eladásra kínálunk 21 darab modern, 1-3 szobás, 1-2 fürdőszobás, erkélyes /teraszos klimatizált, lakásokat***Az ingatlanok az épület első három szintjén helyezkednek el. Az épület teljeskörű műszaki felújításon esett át, a fűtés, hűtés, villany és csatornarendszer felújítása megtörtént, lift került beépítésre. A felújítás során törekedtek minőségi alapanyagok, nyílászárók, burkolatok, szaniterek beépítésére. A lakások klimatizáltak. Az ingatlanok igazi ritkaságnak számítanak. Belsőépítészetében igyekeztek a modern és klasszikus jegyeket ötvözni, ami egy igazán különleges megjelenést kölcsönöz az ingatlannak és már a kapun való belépéskor érzékelni lehet. A lakások rendkívül világosak nagy méretű nyílászáróinak és tájolásának köszönhetően. Az alaprajzok funkcionálisan jól átgondoltak.A fotók a bemutatólakásban készültek. A lakásokban már hideg,- melegburkolat elhelyezésre került. Az építkezés jó ütemben zajlik. A lakásokat meg lehet tekinteni.Projekt jellemzői:- 21 db új modern, klimatizált lakás- 1-3 szobás lakások- 32-84 m² lakások- 4-23 m² terasz- Városi panorámás kilátás- Keresett lokáció, kitűnő közlekedési lehetőségekkelVárható átadás: 2025.első negyedéveAz ár az ÁFA-t (5%) nem tartalmazza.Kiváló lokációjának köszönhetően minden karnyújtásnyi távolságra megtalálható. A tömegközlekedése nagyszerű, a trolibusz, autóbusz, metró megálló pár perc sétatávolságra van.A Belváros szívében hangulatos éttermek, kávéházak, színházak, szórakozóhelyek vannak. A Városligetben lehetőség van kutyasétáltatásra, sportolásra, szabadidős tevékenységekre. Közelben található az Állatkert, Hősök tere, Andrássy út, Nyugati pályaudvar, Westend Bevásárlóközpont.A kerületben a lakás tulajdonosai ingyen parkolnak.Akár értékálló befektetésnek szánja az ingatlant rövid- vagy hosszútávú kiadásra, akár egy olyan nyugodt otthonnak, ami együtt jár a lokációval járó előnyökkel, mindenképpen érdemes mielőbb megtekintenie ezt a projektet, amit átlag feletti kivitelezés és kiváló ár-érték arány jellemez, győződjön meg erről személyesen!
A Duna House teljes kínálatával kapcsolatban forduljanak hozzám bizalommal!

Bankfüggetlen pénzügyi szakembereink tanácsadással, ügyintézéssel tudják segíteni Önöket álmaik, céljaik megvalósításában!

Vegye igénybe díjmentes konzultációinkat!



https://www.facebook.com/otthonkonnyeden

Referencia szám: PR081470/LK/23329
További adatok
Telekterület: -
Kert mérete: -
Erkély mérete: -
Felszereltség: -
Parkolás: garázs
Kilátás: -
Egyéb extrák:  
Hirdető adatai
Hirdető neve: dh.hu - Kispest
Kapcsolattartó: Drevnó Béla
Hirdető telefonszáma: +36703077503
Honlap: -
 
Üzenetet küldhet a hirdetőnek, árajánlatot tehet az ingatlanra:
Az Ön neve:
Az Ön e-mail címe:
Üzenet: