Ingatlan Televízió
Ingatlan Televízió
további hirdetések
adatlap bezárása

Siófok 
 

Hivatkozási szám: 5798733
Ingatlan adatai
Irányár: 78 500 000 Ft
Típus: lakás (tégla)
Kategória: eladó
Alapterület: 106 m2
Fűtés: gáz (cirko)
Állapota: felújított
Szobák száma: 3+1
Építés éve: 1982
Szintek száma: 2
Részletes leírás
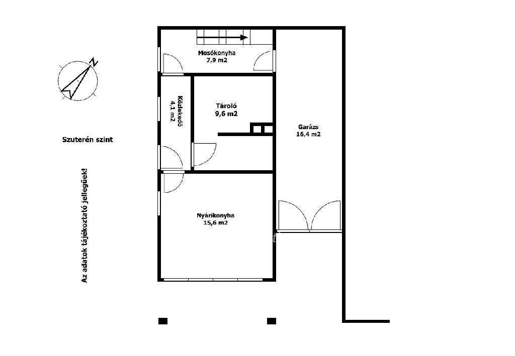
Balaton déli part Siófok 160 m2 családi ház eladó. Az ingatlan Kiliti városrészben családi házas övezetben helyezkedik el. A két szintes lakóépület alsó szintjén garázs, nyári konyha, mosókonyha és tároló kapott helyet, alkalmas lehet külön lakrészként való hasznosításra. A két szint belső lépcsővel összekötött. A 108 m2-es lakószinten a lakóelőtérből 3 szoba és egy félszoba nyílik. A kedvező tájolású nappalihoz teraszkapcsolat biztosított. A tetőtér jelenleg padlásként funkcionál, belső lépcsőről megközelíthető, de külső lépcső építése és tetőtér beépítése esetén nettó 90 m2-es önálló lakásként használható lehet. A lakóépület tetőfedése néhány éve felújításra került. A ház fűtés kombi gázkazánnal, radiátoros hőleadókkal kiépített a lakószinten, a szuterénben gázkonvektor fűt. Az összközműves, bekerített telek terület 800 m2, melyen további gazdasági épület: tároló, műhely található. A lakóépület vásárláshoz OTP hitel, CSOK+ hitel igénybe vehető, ügyintézésben ingyenes szakértői segítséget nyújtunk. Balaton-part 3200 méter, autópálya csatlakozás 1200 méter távolságban van. Bővebb információért keressen telefonon! (M304289)

78500000 Ft

Referencia szám: M304289
További adatok
Telekterület: 800 m2
Kert mérete: -
Erkély mérete: 29 m2
Felszereltség: -
Parkolás: garázs
Kilátás: -
Egyéb extrák:  
Hirdető adatai
Hirdető neve: otpip.hu - Pécs Rákóczi út 19 - OTP Ingatlanpont Iroda
Kapcsolattartó: Borvári Mária
Hirdető telefonszáma: +36703934905
Honlap: -
 
Üzenetet küldhet a hirdetőnek, árajánlatot tehet az ingatlanra:
Az Ön neve:
Az Ön e-mail címe:
Üzenet: