Ingatlan Televízió
Ingatlan Televízió
további hirdetések
adatlap bezárása

Martonvásár 
 

Hivatkozási szám: 5805906
Ingatlan adatai
Irányár: 85 000 000 Ft
Típus: lakás (tégla)
Kategória: eladó
Alapterület: 107 m2
Fűtés: egyéb
Állapota: felújítást igényel
Szobák száma: 3
Építés éve: 1993
Szintek száma: 3
Részletes leírás
Megvételre kínálok Martonvásáron a híres Brunszvik-kastély városában, mindössze 30 percre Budapesttől, a központhoz közel, de mégis csendes, aszfaltos utcában egy nettó 107m2-es, tégla építésű, két szintes családi házat, 1129m2-es saroktelken.

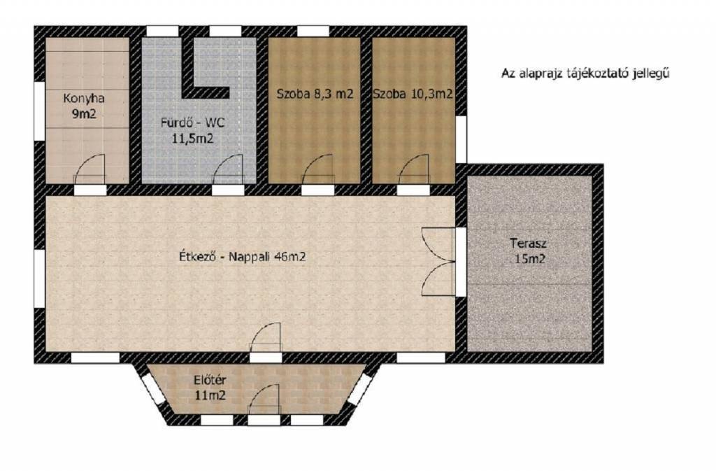
A házban található 107m2-en egy hatalmas nappali étkezővel + 2 szoba, konyha, fürdő, wc és egy előtér. A nappali hatalmas mérete miatt, akár ki lehet alakítani egy amerikai konyhát, így a jelenlegi konyhából egy harmadik hálószobát nyerhetünk.

A ház a nagyméretű nyílászáróknak köszönhetően nagyon világos, napfényes.

A pince szinten található egy 30m2-es garázs és egy 38m2-es tároló helyiség, ami szintén külön bejáratról is megközelíthető. A tetőtérben még egy 90m2-es lakrész alakítható ki.

A meleg víz ellátásról egy villany bojler, a ház fűtéséről vegyestüzelésű kazán - puffertartállyal - illetve hűtő - fűtő klíma gondoskodik. A házban főként műanyag nyílászárók kerültek beépítésre, pár éve lett kicserélve az új, elektromos garázsajtó. A ház külső szigetelést kapott. A tető pár éve lett lecserélve, nagyon jó állapotúak a gerendák, lécek.

A házhoz tartozik egy 15m2-es terasz, ami a nappaliból nyílik.
A ház 1993-ban épült, 30-as porotherm téglából, trapézlemez tetővel.

A ház betonfödémmel épült, így akár még a tetőtér is beépíthető. A födémben kialakításra került a feljáró, így már azt nem kell külön megbontani, de kívülről is megközelíthető a tetőtér, így ott egy külön bejáratú lakrész is kialakítható, akár két generáció együttélésére is alkalmas lehet a ház!

A ház kívülről le van szigetelve!

A telken a gázon kívül minden közmű megtalálható: - víz, - villany, - csatorna.

A ház 1/1 tulajdonnal rendelkezik, tehermentes, akár 1 héten belül birtokba vehető.

A város központját átszeli a 7-es főút, illetve a határában elhalad az M7-es autópálya is, így könnyen megközelíthető Budapest és Székesfehérvár is. A Velencei-tó 15 percre, a Balaton fél óra, Budapest 20 perc távolságra található. A tömegközlekedés is kiváló a városban, sűrűn közlekednek az elővárosi vonatok és a buszjáratok.
Martonvásár ékessége a Brunszvik-kastély és a Beethoven emlékmúzeum.

Az OTP Ingatlanpont teljes körű ügyintézéssel (CSOK, hitel, babaváró) áll az eladók és a vevők rendelkezésére! Az adásvételi szerződés megkötéséhez igény szerint megbízható ügyvédi közreműködést biztosítunk, és segítséget nyújtunk az adásvételhez kapcsolódó ügyek intézéséhez. Megtekintésért és további információkért keressen bizalommal akár hétvégén is!

85000000 Ft
Érd.: Lepsényi Kornél +3670/8840188

Referencia szám: M306365
További adatok
Telekterület: 1 129 m2
Kert mérete: -
Erkély mérete: 15 m2
Felszereltség: -
Parkolás: garázs
Kilátás: -
Egyéb extrák:  
Hirdető adatai
Hirdető neve: otpip.hu - Velence Tópart utca 47 - OTP Ingatlanpont Iroda
Kapcsolattartó: Lepsényi Kornél
Hirdető telefonszáma: +36-70-884-0188
Honlap: -
 
Üzenetet küldhet a hirdetőnek, árajánlatot tehet az ingatlanra:
Az Ön neve:
Az Ön e-mail címe:
Üzenet: