Ingatlan Televízió
Ingatlan Televízió
további hirdetések
adatlap bezárása

Budapest, VI.kerület 
 

Hivatkozási szám: 5809112
Ingatlan adatai
Irányár: 48 000 000 Ft
Típus: kereskedelmi/ipari ingatlan
Kategória: eladó
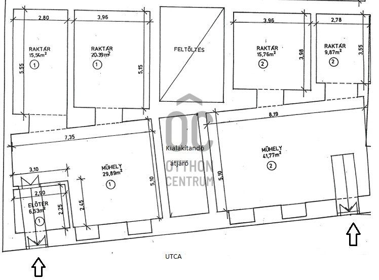
Alapterület: 139 m2
Fűtés: -
Állapota: -
Szobák száma: -
Építés éve: 1920
Szintek száma: -
Részletes leírás
- Kitűnő közlekedési feltételek mellett, M1 Metro
- Nagy méretű, 72 + 67 nm, több helyiségből álló, két helyrajzi számmal rendelkező műhely, mely kis átalakítással egybe nyitható
- Utcáról megközelíthető, két külön bejárattal
- Közművekkel ellátott
- Felújitandó
- Több hasznosításra alkalmas, felújítás esetén üzletnek, kávézónak, cégképviseletnek, bemutatóteremnek, műhelyként hasznosítható

- A társasház tetőterében luxus lakások lesznek kialakítva, vélhetően igény lehet a továbbiakban a társasház részére akár fitnesz teremre, akár bármilyen közösségi térre is kiválóan alkalmas az ingatlan.

Amennyiben a belvárosban, bejárattalközponti helyen keres, több célra alkalmas kitűnő ár-értékarányú nagy alapterületű felújítandó műhelyt, üzlethelyiséget, várom megtisztelő megkeresését.
További adatok
Telekterület: -
Kert mérete: -
Erkély mérete: -
Felszereltség: -
Parkolás: -
Kilátás: -
Egyéb extrák:  
Hirdető adatai
Hirdető neve: Otthon Centrum
Kapcsolattartó: Varga Olga
Hirdető telefonszáma: +36 70 469 3806
Honlap: -
 
Üzenetet küldhet a hirdetőnek, árajánlatot tehet az ingatlanra:
Az Ön neve:
Az Ön e-mail címe:
Üzenet: