Ingatlan Televízió
Ingatlan Televízió
további hirdetések
adatlap bezárása

Kálló 
 

Hivatkozási szám: 5812177
Ingatlan adatai
Irányár: 10 000 000 Ft
Típus: ház
Kategória: eladó
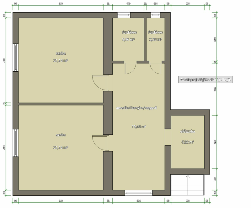
Alapterület: 75 m2
Fűtés: -
Állapota: -
Szobák száma: 2
Építés éve: 1960
Szintek száma: -
Részletes leírás
Kálló csendes, barátságos részén, a Rákóczi úton kínálom eladásra ezt a 75 nm alapterületű, használt lakóingatlant, amely ideális választás fiatal felnőttek számára, akik saját otthonra vágynak vagy befektetési céllal keresnek ingatlant.

A telek mérete 1124 nm, így bőséges lehetőséget biztosít a kertészkedésre vagy akár egy kis pihenőkert kialakítására is. Az ingatlanban elkezdőttek a felujítások, ami lehetőséget ad arra, hogy az új tulajdonos folytassa és saját ízlésére formálja a tereket, hiszen a két szoba és a két új fürdőszoba remek alapot ad a kreatív átalakításokhoz. A ház allat el helyezkedik egy 50m2- es pince is, ahol helyet kapot a bojler is ami a meleg vizet ellátásról gondoskodik. A környék nyugodt, biztonságos légkörével ideális választás lehet a fiatalok számára, akik értékelik a csendes lakóövezeteket, miközben a közlekedési lehetőségek is kedvezőek.

Kálló település jól megközelíthető autóval és tömegközlekedéssel egyaránt. A közeli buszmegállókból rendszeres járatok indulnak a környező városokba, így könnyedén elérheti a közeli nagyobb települések nyújtotta lehetőségeket, legyen szó munkáról, szórakozásról vagy vásárlásról. A település közelsége a természethez szintén vonzó lehet, hiszen a környék számos kirándulóhelyet kínál, ahol a szabadban eltöltött idő valódi feltöltődést jelenthet. Kálló barátságos közössége és a helyi szolgáltatások, mint boltok és egészségügyi intézmények is hozzájárulnak ahhoz, hogy itt élni igazán kellemes legyen. Ez a tehermentes ingatlan remek lehetőséget kínál mindazok számára, akik szeretnék megvalósítani álmaikat egy saját otthonban, vagy akik befektetési céllal keresnek ingatlant.

Amennyiben felkeltette érdeklődését ez a kiváló lehetőség, kérem, ne habozzon kapcsolatba lépni velem!
Szívesen válaszolok kérdéseire, és segítek Önnek abban, hogy megtalálja az ideális ingatlant, amely megfelel az elképzeléseinek. Az ingatlanpiac folyamatosan változik, így érdemes minél előbb lépni, hogy ne maradjon le erről a remek lehetőségről!
További adatok
Telekterület: 1 124 m2
Kert mérete: 1 124 m2
Erkély mérete: -
Felszereltség: -
Parkolás: -
Kilátás: udvari
Egyéb extrák:  
Hirdető adatai
Hirdető neve: Ingatlanmentor powered by Rock Home
Kapcsolattartó: Horváth Tibor
Hirdető telefonszáma: +36 70 467 6871
Honlap: -
 
Üzenetet küldhet a hirdetőnek, árajánlatot tehet az ingatlanra:
Az Ön neve:
Az Ön e-mail címe:
Üzenet: