Ingatlan Televízió
Ingatlan Televízió
további hirdetések
adatlap bezárása

Budapest, X.kerület 
 

Hivatkozási szám: 5814975
Ingatlan adatai
Irányár: 114 316 880 Ft
Típus: lakás (tégla)
Kategória: eladó
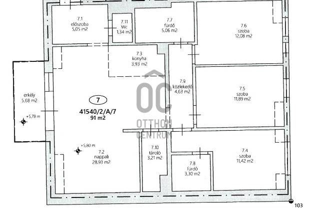
Alapterület: 91 m2
Fűtés: -
Állapota: új
Szobák száma: 4
Építés éve: 2023
Szintek száma: 1
Részletes leírás
Az ingatlan a tetőtérben található. Normál 2.60-as belmagasság. A szobák utcai nézetűek a nappali kertre néző. Az összes terület a bruttó 98.85 m2-es lakótérből és az 5.53 m2-es terasz felének beszámításából tevődik össze.
Projekt bemutatása

A projekt használatbavételi engedéllyel rendelkezik!
Önálló albetét. Az ingatlanok földhivatali bejegyzése megtörtént!
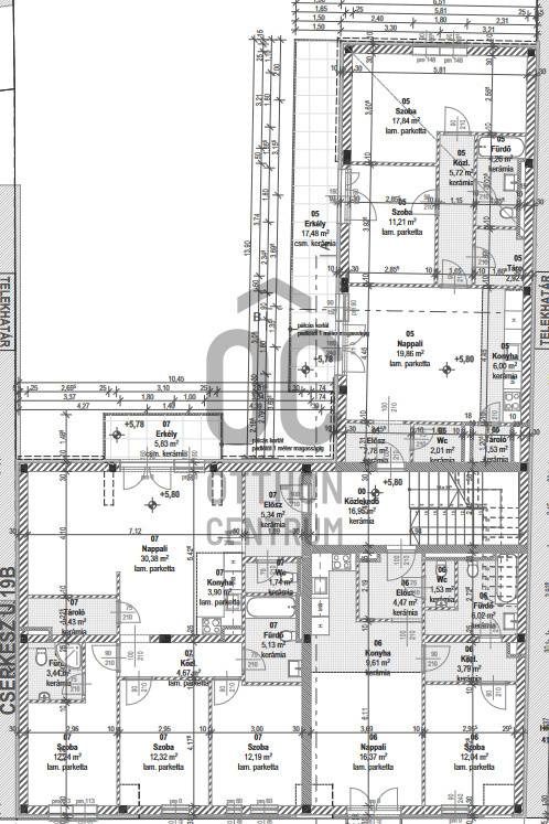
A 7 lakásos társasház Kőbánya központi részén, csendes mellékutcában található. Az épület közvetlen közelében egy két tannyelvű óvoda és általános iskola, 100 méterre játszótér,
200 méteres távolságban több villamos és buszjárat. A belváros 15 perc alatt elérhető.
A projekt elkészült. A teljes vételár megfizetését követően azonnal birtokba vehető.
Még 3 db lakás elérhető. Nappali 1 hálós, nappali +2 hálós és nappali + 3 hálós lakások. Tökéletes elosztású ingatlanok.
Energiatakarékos, hőszivattyús hűtés / fűtés, A+ energetikai besorolás.
A tetőtéri lakások felett a padlástér beépítésre került, így ezek az ingatlanok minimális ferde fallal rendelkeznek és elenyésző részben kapcsolódnak a tetőszerkezethez. Normál belmagasságúak.
A konyhabútor nem tartozéka a lakásnak.
Beálló vásárolható, melynek ára 5,5 millió Ft.
A beruházó 25 éve markáns szereplője az ingatlanpiacnak. Magas minőségű kivitelezés, több szakmai díjjal elismert fejlesztő.





















Új építés# energiatakarékos # azonnal költözhető# terasz# kertkapcsolat# 2 szoba# 3 szoba#4 szoba
További adatok
Telekterület: -
Kert mérete: -
Erkély mérete: 6 m2
Felszereltség: -
Parkolás: -
Kilátás: -
Egyéb extrák:  
Hirdető adatai
Hirdető neve: oc.hu - V. kerület - Hild tér
Kapcsolattartó: Alaitner Gábor
Hirdető telefonszáma: +36704619291
Honlap: -
 
Üzenetet küldhet a hirdetőnek, árajánlatot tehet az ingatlanra:
Az Ön neve:
Az Ön e-mail címe:
Üzenet: