Ingatlan Televízió
Ingatlan Televízió
további hirdetések
adatlap bezárása

Balatonakarattya 
 

Hivatkozási szám: 5815847
Ingatlan adatai
Irányár: 179 000 000 Ft
Típus: lakás (tégla)
Kategória: eladó
Alapterület: 154 m2
Fűtés: -
Állapota: új
Szobák száma: 4
Építés éve: 2025
Szintek száma: 2
Részletes leírás
ELADÓ LUXUS VILLA BALATONAKARATTYA SZÍVÉBEN! A JÖVŐ OTTHONA A BALATON PARTJÁN!

Kivételes lehetőség várja Önt Balatonakarattya legkedveltebb nyaralóövezetében! Ez a lenyűgöző, újonnan épült ikervilla mindössze pár perces sétára található a Balatontól, mégis egy teljesen csendes és nyugodt környéken, távol a nyári főszezon nyüzsgésétől. Tökéletes választás azoknak, akik a pihenést és a feltöltődést keresik, de szeretnének a vízközelben élni.

Az Ingatlanról részletesebben:
Egy 1003 nm-es gondozott telken elhelyezkedő exkluzív villa, egy 155 nm-es ikerházfél keresi új tulajdonosát, hatalmas, privát kerttel és saját fedett autóbeállóval, amely kényelmes parkolási lehetőséget biztosít.

Luxus és Fenntarthatóság Találkozása:
Ez a villa a legmodernebb technológiával és a legmagasabb minőségű anyagokkal épült, figyelembe véve a környezettudatosságot és az energiahatékonyságot. Az AA energiaosztályú besorolás garantálja az alacsony rezsiköltségeket és a fenntartható életmódot.

Főbb jellemzők:

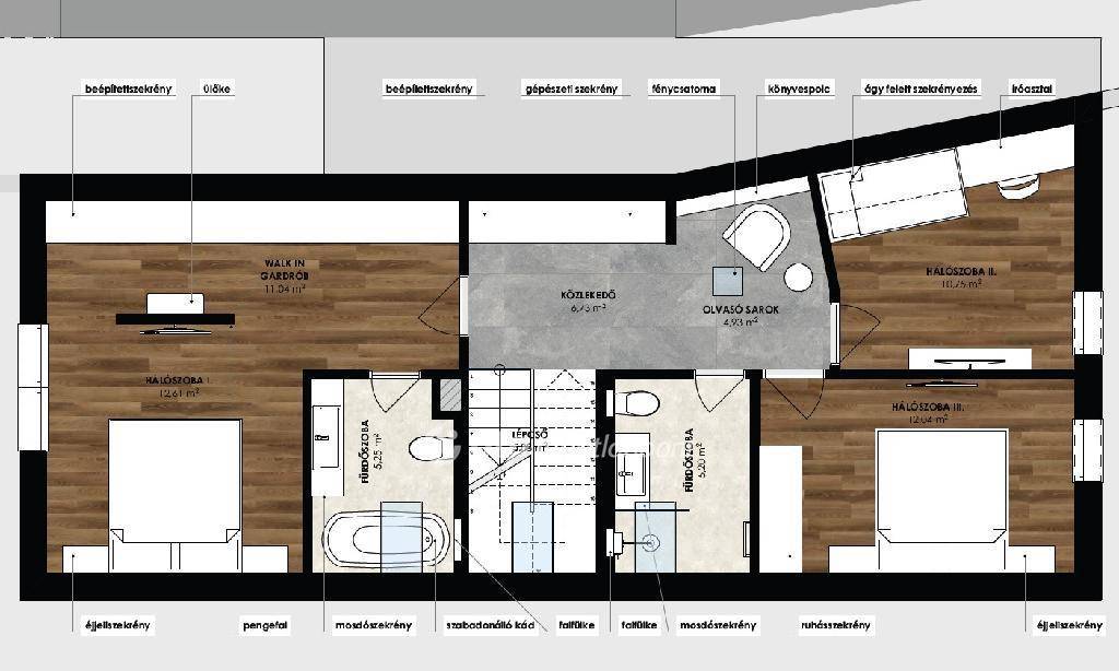
Földszint: Tágas, amerikai konyhás nappali, amely közvetlen kapcsolattal rendelkezik egy pergolás hatalmas terasszal. Ideális helyszín a családi összejövetelekhez és a baráti vacsorákhoz. Ezen kívül fürdőszoba és mosókonyha is megtalálható a mindennapi élet megkönnyítésére.

Emelet: Három tágas hálószoba biztosítja a kényelmes pihenést. Ezekhez a szobákhoz két fürdőszoba tartozik: az egyik káddal, a másik zuhanyzóval felszerelve a maximális kényelem érdekében, valamint egy gardrób rész, hogy a tárolás is megoldott legyen.

A Kivitelezés Magas Minőségű, Minden Részletre Kiterjedő.
A villa építésénél nem ismertek kompromisszumot a minőség terén. Néhány kiemelkedő technikai paraméter:

Masszív vasbeton teherhordó szerkezet és Porotherm 30 x-therm falazat 12 cm-es homlokzati hőszigeteléssel.

Acélszerkezettel erősített fa tetőszerkezet Leier betoncseréppel.

3x20A villamosenergia-ellátás, külön H-tarifás villanyóra a hőszivattyúhoz és napelemrendszer előkészítés.

INTERNORM műanyag-alu 3 rétegű üvegezésű nyílászárók és motorosan vezérelt, rejtett tokos alumínium redőnyök.

Daikin hőszivattyúk gondoskodnak a padlófűtésről és a fan-coil befúvórendszerről, garantáltan kellemes hőmérséklet télen-nyáron.

Hansgrohe szaniterek, valamint minőségi olasz és spanyol kerámia burkolatok.

Kültéri Leier térkő burkolatok és járdák, 180 cm magas WPC kerítés.

Kamera és riasztórendszer, valamint motorosan működő kapu a maximális biztonságért.

Az elektromos és gépészeti rendszerek kiemelkedő minőségűek.

Ne Hagyja Ki Ezt a Kivételes Lehetőséget!
Ez az ingatlan nem csupán egy ház, hanem egy életérzés. A műszaki leírás minden részlete precízen kidolgozott és a legmodernebb technológiákat alkalmazza.

Amennyiben Ön is úgy érzi, hogy megtalálta álmai otthonát hívjon MOST! Egy előre egyeztetett időpontban részletesen bemutatjuk az ingatlant, hogy Ön is meggyőződhessen erről a kivételes lehetőségről.
Érdeklődni: Kiss Hortenzia +36-70-369-8323

Referencia szám: M308583
További adatok
Telekterület: 1 003 m2
Kert mérete: -
Erkély mérete: 48 m2
Felszereltség: -
Parkolás: lakáshoz van kültéri parkoló
Kilátás: -
Egyéb extrák:  
Hirdető adatai
Hirdető neve: otpip.hu - Veszprém Kossuth utca 8 - OTP Ingatlanpont Iroda
Kapcsolattartó: Kiss Hortenzia Melinda
Hirdető telefonszáma: +36-70-369-8323
Honlap: -
 
Üzenetet küldhet a hirdetőnek, árajánlatot tehet az ingatlanra:
Az Ön neve:
Az Ön e-mail címe:
Üzenet: