Ingatlan Televízió
Ingatlan Televízió
további hirdetések
adatlap bezárása

Komárom 
 

Hivatkozási szám: 5816483
Ingatlan adatai
Irányár: 143 656 000 Ft
Típus: ház
Kategória: eladó
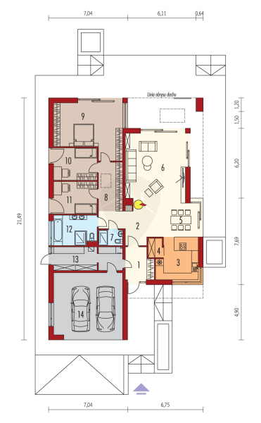
Alapterület: 196 m2
Fűtés: -
Állapota: új
Szobák száma: 3
Építés éve: 2024
Szintek száma: -
Részletes leírás
Kedves Érdeklődő!

Örömmel mutatjuk be ezt a modern, újépítésű ingatlant, amely egy biztonságos, barátságos és nyugodt környezetben várja leendő tulajdonosát.

**Elhelyezkedés:**

Az ingatlan Komárom központi részén, a Térffy Gyula utcában található. Az utca kiváló elhelyezkedése révén könnyedén megközelíthető a város főbb útvonalairól, mind gyalogosan, mind autóval. A környék jól ellátott, számos bolt, iskola és közintézmény található a közelben, így minden fontos szolgáltatás kényelmesen elérhető. Az ingatlan ideális választás azok számára, akik a város nyüzsgésében, mégis otthonos környezetben szeretnének élni.

**Műszaki adatok:**

- Fűtés:*Hőszivattyú
- Alapozás: 0,45 m szélességben és 0,9 m mélységben. A kiásott alapba a vasszerelés 12 mm-es betonacél és 8 mm-es kengyel betonacél erősítéssel történik. A betonozás sávalapban C16 20 KK betonnal készül.
- Aljzat: Az aljzat alatti részt 10 cm vastagságban 15/50 mm-es kaviccsal töltjük fel, majd géppel tömörítjük.
- Lábazat: Zsalutégla
- Szigetelés: 1 rtg. 4 mm-es bitumenes szigetelés
- Külső teherhordó falak: POROTHERM 30 N+F
- Válaszfalak: POROTHERM 10 N+F
- Födém: Ácsolt fa födém, láng-, rovar- és gombamentesítővel kezelve
- Hőszigetelés: Az épület padlójának hőszigetelése 10 cm AT-N100 lépésálló hőszigeteléssel készül
- Burkolatok:Prémium minőségű laminált padló
- Beltéri ajtók:Minőségi beltéri szobaajtók
- Nyílászárók:3 rétegű, 7 kamrás ablakok
- Elektromos és vízhálózat:Teljesen kiépített, konnektorokkal, kapcsolókkal és relédobozokkal

**Fontos megjegyzés:**

Az épület műszaki felszereltsége és burkolatai még a te ízlésedre szabhatóak, így valóban saját otthont alakíthatsz ki.

Ha bármilyen további információra lenne szükséged, várom a hívásod!
További adatok
Telekterület: 650 m2
Kert mérete: 650 m2
Erkély mérete: -
Felszereltség: -
Parkolás: -
Kilátás: udvari
Egyéb extrák:  
Hirdető adatai
Hirdető neve: Ispán-Petróczy Szilvia Gréta EV.
Kapcsolattartó: Petróczy Gréta
Hirdető telefonszáma: +36 70 412 5731
Honlap: -
 
Üzenetet küldhet a hirdetőnek, árajánlatot tehet az ingatlanra:
Az Ön neve:
Az Ön e-mail címe:
Üzenet: