Ingatlan Televízió
Ingatlan Televízió
további hirdetések
adatlap bezárása

Ormosbánya 
 

Hivatkozási szám: 5820781
Ingatlan adatai
Irányár: 9 990 000 Ft
Típus: lakás (tégla)
Kategória: eladó
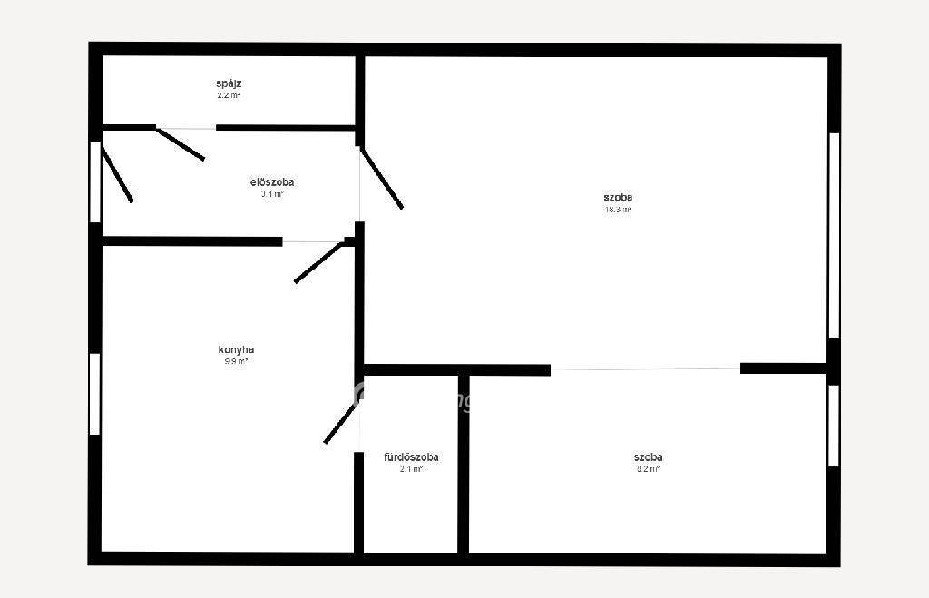
Alapterület: 44 m2
Fűtés: gáz (konvektor)
Állapota: felújított
Szobák száma: 1+1
Építés éve: 1960
Szintek száma: 1
Részletes leírás
Kazincbarcikától 15km-re, Ormosbánya településen két 1,5 szobás falszomszédos társasházi lakás eladó, KERTKAPCSOLATTAL. Ez az egyik, érdeklődjön a másikról is! Egyben vásárolva lehetőség van összenyitni a két lakást, vagy külön-külön is megvehető. Az otthon melegét gáz-konvektorok biztosítják, de igény szerint kandalló is beépíthető, kémény van. A melegvizet 80 literes villanybojler szolgáltatja. Az ablakokat és a bejárati ajtót hőszigeteltre cserélték. Középső lakás, így jól tartja a meleget. A villanyvezetékek aláthúzása megtörtént. A lakáshoz önálló pince (mosókonyhává alakítható) és padlásrész is van. A saját kertrészben gondozott veteményes került kialakításra. Mindez csendes, nyugodt, barátságos zöldövezeti környezetben, megbízható szomszédokkal, szép kilátással. Ingatlanirodánk ügyvédi háttérrel, babaváró hitel, falusi CSOK, CSOK Plusz, valamint kamatkedvezményes hitel ügyintézésével támogatja ügyfelei ingatlanvásárlását! Érdeklődés esetén hivatkozzon az M306838 referencia számra!
ÉRDEKLŐDNI: PUCSOK HAJNALKA 06204911723

Referencia szám: M306838
További adatok
Telekterület: -
Kert mérete: -
Erkély mérete: -
Felszereltség: -
Parkolás: -
Kilátás: -
Egyéb extrák:  
Hirdető adatai
Hirdető neve: otpip.hu - Miskolc Szemere Bertalan utca 20 - OTP Ingatlanpont Iroda
Kapcsolattartó: Pucsok Hajnalka
Hirdető telefonszáma: +36-20-491-1723
Honlap: -
 
Üzenetet küldhet a hirdetőnek, árajánlatot tehet az ingatlanra:
Az Ön neve:
Az Ön e-mail címe:
Üzenet: