Ingatlan Televízió
Ingatlan Televízió
további hirdetések
adatlap bezárása

Baktakék 
 

Hivatkozási szám: 5820783
Ingatlan adatai
Irányár: 16 000 000 Ft
Típus: ház
Kategória: eladó
Alapterület: 170 m2
Fűtés: egyéb
Állapota: felújítást igényel
Szobák száma: 4+1
Építés éve: 1986
Szintek száma: 3
Részletes leírás
Eladó BAKTAKÉK frekventált helyén egy nettó 170 nm hasznos alapterületű, 4+1 fél szobás, összkomfortos, eltolt szintes családi ház, amely egy 890 m2-es telken helyezkedik el.

A ingatlan 1983-ban épült szilikátból. A tetőt kifogástalan állapotú, héjazata LINDAB cserepes lemez. A nyílászárók kifogástalan állapotúan, melyek fából készültek.
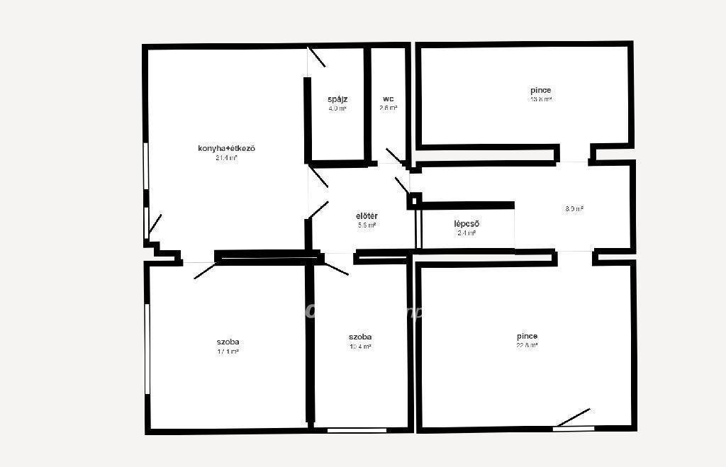
A ház félig alápincézett, szilárd beton alapra öntött, itt található egy vegyes tüzelésű kazán, valamint további tárolóhelyiségek. A házhoz tartozik egy egy állású garázs, amely az utcafrontról jól megközelíthető.

Az ingatlan alsó szintjén egy szoba, egy fél szoba, étkező + konyha, spájz, és külön WC helyiségek találhatóak. Az étkezőből egy fedett taraszon keresztül közvetlenül megközelíthető az udvar. A nappali parkettával, a többi helyiség járólappal fedett. A földszinten található egy teljesértékű szoba, valamint a garázs, ahonnan egyenesen a lakótérbe jutunk.
Az emeleten két teljes értékű hálószoba, valamint egy fürdőszoba került kialakításra. A fürdőszoba járólappal, a többi helyiség parkettával burkolt.
A kertben gyümölcsfák, veteményes, szalonnasütő is helyett kapott. Ez pont egy akkor kert, ahol a gyerekek akár egész nap tudnak játszani.

Központi helyen fekszik az ingatlan. Iskola, óvoda, bolt, tömegközlekedés, autópálya 5 percen belül elérhető. OTP banki hátterünknek köszönhetően kedvezményes hitel, CSOK, babaváró ügyintézésben is tudunk segíteni ügyfeleinknek. Érdeklődés esetén kérem hivatkozzon az M308685-os azonosítási számra.
További adatok
Telekterület: 890 m2
Kert mérete: -
Erkély mérete: -
Felszereltség: -
Parkolás: garázs
Kilátás: -
Egyéb extrák:  
Hirdető adatai
Hirdető neve: otpip.hu - Miskolc Szemere Bertalan utca 20 - OTP Ingatlanpont Iroda
Kapcsolattartó: Oroszné Ferencsák Mária
Hirdető telefonszáma: +36307091435
Honlap: -
 
Üzenetet küldhet a hirdetőnek, árajánlatot tehet az ingatlanra:
Az Ön neve:
Az Ön e-mail címe:
Üzenet: