Ingatlan Televízió
Ingatlan Televízió
további hirdetések
adatlap bezárása

Magyargencs 
 

Hivatkozási szám: 5820850
Ingatlan adatai
Irányár: 10 900 000 Ft
Típus: ház
Kategória: eladó
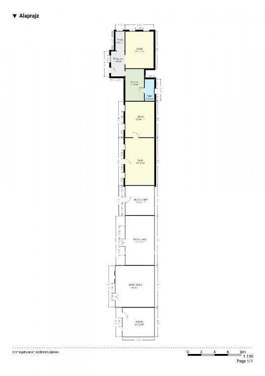
Alapterület: 107 m2
Fűtés: egyéb
Állapota: felújítást igényel
Szobák száma: 3
Építés éve: 1964
Szintek száma: 1
Részletes leírás
ELADÓ CSALÁDI HÁZ NAGY TELEKKEL MAGYARGENCS KÖZPONTJÁBAN

Kihagyhatatlan lehetőséget kínálunk mindazoknak, akik SAJÁT IGÉNYEIK SZERINT alakítanák ki álmaik otthonát! Magyargencs központjában vált ELADÓVÁ egy 107 m?-es, 3 SZOBÁS családi ház, amely egy HATALMAS, 4618 m?-es TELEKKEL rendelkezik.

Az ingatlan VEGYES FALAZATTAL épült, jelenlegi állapotában TELJES FELÚJÍTÁST IGÉNYEL. A FELÚJÍTÁSI MUNKÁLATOK már megkezdődtek: a ház elülső részén már ELKÉSZÜLT az ALJZATBETON, illetve a VÍZSZIGETELÉS is megvalósult, mely kiváló alapot biztosít a további korszerűsítési munkákhoz.

A ház TÁGAS ELRENDEZÉSŰ, ideális választás mind családok, mind befektetők számára, akik ÉRTÉKNÖVELŐ PROJEKTET keresnek. A NAGYMÉRETŰ TELEK lehetőséget ad kert kialakítására, gazdálkodásra vagy további bővítésre is.

Az ingatlan elhelyezkedése KÖZPONTI, ezzel biztosítva a könnyű megközelíthetőséget, valamint a helyi infrastruktúrához való gyors hozzáférést.

Ha olyan INGATLANT keres, amelyet saját elképzelései alapján ÚJÍTHAT FEL, EZ a magyargencsi családi ház IDEÁLIS választás! Ne hagyja ki ezt a NAGY POTENCIÁLLAL rendelkező ajánlatot! Forduljon hozzánk további információért!
Amennyiben felkeltette ez a remek ingatlan a figyelmét, vagy kérdése lenne keressen bizalommal!
Érdeklődni: Molnár Márk Telefon: 06 30 265 5725

Referencia szám: M308325-ITV
További adatok
Telekterület: 4 618 m2
Kert mérete: -
Erkély mérete: -
Felszereltség: -
Parkolás: lakáshoz van kültéri parkoló
Kilátás: -
Egyéb extrák:  
Hirdető adatai
Hirdető neve: otpip.hu - Pápa Eötvös utca 16 - OTP Ingatlanpont Iroda
Kapcsolattartó: Molnár Márk István
Hirdető telefonszáma: +36302655725
Honlap: -
 
Üzenetet küldhet a hirdetőnek, árajánlatot tehet az ingatlanra:
Az Ön neve:
Az Ön e-mail címe:
Üzenet: