Ingatlan Televízió
Ingatlan Televízió
további hirdetések
adatlap bezárása

Budapest, V.kerület 
 

Hivatkozási szám: 5821302
Ingatlan adatai
Irányár: 218 000 000 Ft
Típus: lakás (tégla)
Kategória: eladó
Alapterület: 79 m2
Fűtés: egyéb
Állapota: felújított
Szobák száma: 2
Építés éve: 2018
Szintek száma: 1
Részletes leírás
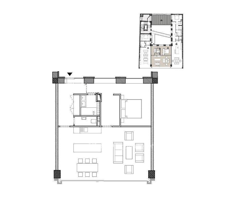
Budapest belváros, V. kerület, 6. emeleti 79 m2-es lakás eladó. Az épület 2018-ban teljesen új belsőt kapott, a tervezők 31 egyedi stílusú loft lakást alakítottak ki. A teljes 6. emelet megvásárolható, a lakások egybenyitására van lehetőség. (246 m2)
Tökéletes lokáció, tágas, világos terek és nagy belmagasságok, industrial stílus jellemzi a lakásokat. A hirdetésben szereplő lakás helyiségei: amerikai konyhás nappali, 1 hálószoba, 2 fürdőszoba, közlekedők. A nappali a Múzeum körútra néz, padlótól a mennyezetig érő közel 9 m széles ablakfelülettel.
A liftes ház belső udvarban acél hidak helyettesítik a korábbi körfolyosókat. Minden lakásban fan-coil rendszer biztosítja a fűtést és hűtést, padlófűtéssel kiegészítve.
Az épület Budapest központjában az Astoria metró megállónál található. Közeli bkk járatok: 47, 49-es villamos, a 7, 107,110, 112-es, busz. Séta távolságra van a Deák Ferenc tér a város legnagyobb tömegközlekedési csomópontja, három metróvonallal (M1, M2, M3). Gyorsan birtokba vehető.

Referencia szám: M309872
További adatok
Telekterület: -
Kert mérete: -
Erkély mérete: -
Felszereltség: -
Parkolás: -
Kilátás: -
Egyéb extrák:  
Hirdető adatai
Hirdető neve: otpip.hu - Siófok Sió utca 10 - OTP Ingatlanpont Iroda
Kapcsolattartó: Zsitnyányi Ágnes
Hirdető telefonszáma: +36-70-316-3864
Honlap: -
 
Üzenetet küldhet a hirdetőnek, árajánlatot tehet az ingatlanra:
Az Ön neve:
Az Ön e-mail címe:
Üzenet: