Ingatlan Televízió
Ingatlan Televízió
további hirdetések
adatlap bezárása

Budapest, V.kerület 
 

Hivatkozási szám: 5822204
Ingatlan adatai
Irányár: 386 250 Ft
Típus: lakás (tégla)
Kategória: kiadó
Alapterület: 42 m2
Fűtés: házközponti egyedi méréssel
Állapota: -
Szobák száma: 1
Építés éve: 1910
Szintek száma: -
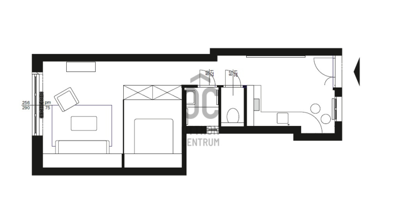
Részletes leírás
Egy hangulatos tér a belváros közepén, ahol a XVIII. és XXI. század építészete harmóniában együtt él.

A tér déli oldalán a Szent Anna templom és a pár éve átadott Emerald Residence modern épülete öleli egymást.
Nyugati részén a korai modern szecesszió egyik ikonikus épülete a „Török- bankház” szemléli új szomszédját a Szervita Square Building üveg palotáját.
Itt található Lajta Béla, Rózsavölgyi háza is a földszinten üzletekkel, felettük a Rózsavölgyi szalonnal, a felső emeleteken pedig lakásokkal.

A lakás a Rózsavölgyi ház 3. emeletén a térre néz.
42 m2, a térre néző nappali hátsó frontján üveg tolóajtóval leválasztva egy hálófülke található.
Konyhája modern, gépesített, ablakkal a ház belső udvara felé.
A fürdőben épített zuhany, henger alakú kézmosóval került kialakításra.
A közlekedő mennyezetig érő gardróbjában kapott helyet a mosó – szárító gép.

A lakás klimatizált, fűtése házközponti.

bérlet: 1 000 EUR / hó
kaució: 2 havi díj
közös költség: 12 600 Ft / hó
fűtés átalány: 10 200 Ft / hó
További adatok
Telekterület: -
Kert mérete: -
Erkély mérete: -
Felszereltség: -
Parkolás: -
Kilátás: utcai
Egyéb extrák:  
Hirdető adatai
Hirdető neve: Otthon Centrum
Kapcsolattartó: Lipiczky András
Hirdető telefonszáma: +36 70 716 9196
Honlap: -
 
Üzenetet küldhet a hirdetőnek, árajánlatot tehet az ingatlanra:
Az Ön neve:
Az Ön e-mail címe:
Üzenet: