Ingatlan Televízió
Ingatlan Televízió
további hirdetések
adatlap bezárása

Vác 
 

Hivatkozási szám: 5825569
Ingatlan adatai
Irányár: 65 000 000 Ft
Típus: telek
Kategória: eladó
Alapterület: 1 025 m2
Fűtés: -
Állapota: -
Szobák száma: -
Építés éve: -
Szintek száma: -
Részletes leírás
Eladó panorámás építési telek Vác, 1025nm, tökéletes befektetés vagy otthon vár Önre!

Kivételes lehetőség befektetők számára, vagy akik álmaik otthonát szeretnék megépíteni és a tökéletes telket keresik! A Pest vármegyei Vác város Deákvár városrészében kínálunk eladásra egy lenyűgöző, 1025 nm-es telket, amely csendes lakóövezetben helyezkedik el.

A telek Lke-1 építési övezetbe tartozik, ahol:
-a legnagyobb megengedett beépítettség 20%,
-a megengedett legnagyobb építménymagasság 5 m,
-a megengedett legkisebb építménymagasság 3 m,
-a megengedett legnagyobb beépítettség terepszint alatt 20%
-a legkisebb kialakítandó zöldfelület 75%
-a megengedett legnagyobb szintterületi mutató 0,4 m2/m2
-a beépítés jellemző módja szabadon álló

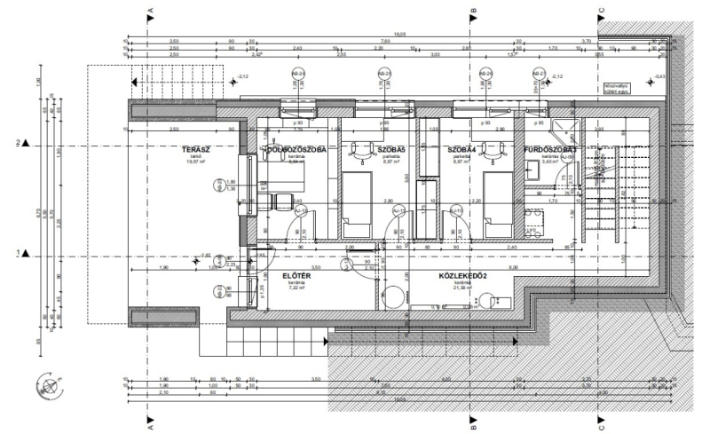
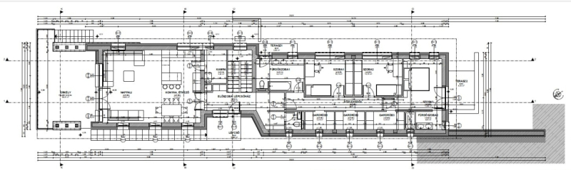
Az ár tartalmazza az elkészült építési terveket is.

A telek két úton is megközelíthető! Közművek az utcában a telek előtt.

Ez a telek nem csupán egy üres földterület, hanem egy lehetőség, hogy megvalósítsa elképzeléseit, legyen az egy családi ház vagy egy modern ingatlan, amely a jövő trendjeit követi.
A telek elhelyezkedése kiemelkedő, hiszen a környék ellátottsága kiváló, így minden szükséges szolgáltatás, mint boltok, iskola, óvoda, orvosi rendelő, gyógyszertár, piac a közelben találhatóak.

A kitűnő közlekedés révén Vác belvárosa, valamint a közeli települések is könnyedén megközelíthetők.

A telek tehermentes, így kifizetése esetén azonnal birtokba vehető, és a csendes környezet garantálja, hogy otthona nyugodt, kertvárosi lakás hangulatát tükrözze.

Az ingatlan környezete biztonságos, barátságos szomszédsággal rendelkezik, amely ideális helyszínt biztosít fiatalok számára, akik a város nyüzsgésétől távol, de mégis közel szeretnének élni mindenhez.

További információért forduljon Hozzám bizalommal!
Igény esetén videót küldök a ház látványtervéről.

Amivel segítjük az Ön ingatlanvásárlását:
-ingyenes hitelügyintézés
-jogi háttér
-földhivatali ügyintézés
-energetikai tanúsítvány elkészítése
-biztosítás
További adatok
Telekterület: 1 025 m2
Kert mérete: -
Erkély mérete: -
Felszereltség: -
Parkolás: -
Kilátás: -
Egyéb extrák:  
Hirdető adatai
Hirdető neve: GDN Ingatlanhálózat
Kapcsolattartó: Bayer Zoltán
Hirdető telefonszáma: +36-70-422-2871
Honlap: -
 
Üzenetet küldhet a hirdetőnek, árajánlatot tehet az ingatlanra:
Az Ön neve:
Az Ön e-mail címe:
Üzenet: