Ingatlan Televízió
Ingatlan Televízió
további hirdetések
adatlap bezárása

Budapest, VIII.kerület 
 

Hivatkozási szám: 5827165
Ingatlan adatai
Irányár: 114 900 000 Ft
Típus: lakás (tégla)
Kategória: eladó
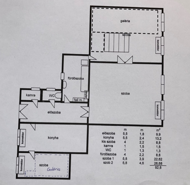
Alapterület: 90 m2
Fűtés: gáz (konvektor)
Állapota: -
Szobák száma: 2+1
Építés éve: 1920
Szintek száma: 2
Részletes leírás
Eladásra kínálunk a Mátyás téren, egy 90 m²-es (valóságban 93 m²-es), utcai és udvari nézetű, jó állapotú, világos lakást. Az ingatlan a 2. emeleten található, liftes társasházban, amelynek külső homlokzata igényesen karbantartott.

A lakás 2+1 szobás, külön konyhával, valamint nagy belmagassággal rendelkezik. Az otthon különlegessége a dupla galéria, amely kiválóan növeli a hasznos alapterületet, így ideális lehet akár dolgozósarok, hálórész vagy tároló kialakítására. A műanyag nyílászárók korszerűek, a fűtést gázkonvektorok biztosítják.

A környék folyamatosan fejlődik: közelben található iskola, óvoda, játszótér, boltok, kávézók, gyógyszertár, minden fontos szolgáltatás könnyen elérhető.
A közlekedés szintén kiváló, a metrómegálló pár perc sétára található.

Ez az ingatlan ideális választás mindazoknak, akik tágas, jó elosztású lakást keresnek egy értékálló, megújuló városrészben.

Jöjjön el, nézze meg, és tegyen ajánlatot!

INGYENES hitel tanácsadás!
BANKFÜGGETLEN hitelcentrumunk minden elérhető bank és hitelintézet ajánlatát versenyezteti az Ön kedvéért, ráadásul DÍJMENTESEN.

ID:386369
További adatok
Telekterület: -
Kert mérete: -
Erkély mérete: -
Felszereltség: -
Parkolás: -
Kilátás: utcai
Egyéb extrák:  
Hirdető adatai
Hirdető neve: GDN Ingatlanhálózat
Kapcsolattartó: Füredi Felícia
Hirdető telefonszáma: +36-30-828-2621
Honlap: -
 
Üzenetet küldhet a hirdetőnek, árajánlatot tehet az ingatlanra:
Az Ön neve:
Az Ön e-mail címe:
Üzenet: