Ingatlan Televízió
Ingatlan Televízió
további hirdetések
adatlap bezárása

Gyönk 
 

Hivatkozási szám: 5827251
Ingatlan adatai
Irányár: 14 000 000 Ft
Típus: ház
Kategória: eladó
Alapterület: 109 m2
Fűtés: egyéb
Állapota: felújítást igényel
Szobák száma: 4
Építés éve: 1965
Szintek száma: -
Részletes leírás
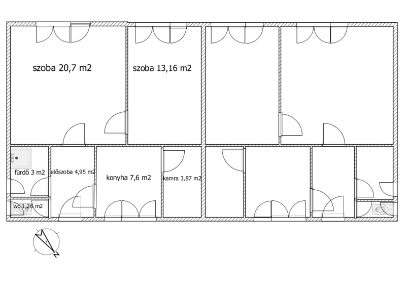
Az eladó ikerház két lakásból áll, amelyek egymás tükörképei. Igény szerint egybe nyithatóak.
A ház tégla falazattal, cserép tetővel, beton aljzattal és betontálcás födémmel rendelkezik.
Mindkét házrészben két szoba, konyha, fürdő, wc és kamra található.
Fűtése jelenleg kályhával lehetséges.
Aszfaltozott úton megközelíthető. Úzd előtt kell balra fordulni, és az út egyenesen odavisz.
Gyönk földúton 7 km.
A telek összesen 1143 m2.
Az odavezető út is vadregényes, a Varasdi halastavak mellett haladunk végig, a másik oldalon erdő.
A házba az áram és a víz be van vezetve, csatorna nincs.
Az ingatlan felújítandó, de jó alap a saját elképzelések megvalósításához.
Ha valaki csendes, zöld környezetbe vágyik, vagy elvonulásra alkalmas ingatlant keres, ez tökéletes lehet!

zöld csendes tégla ikerház erdő mellett OC H505721
További adatok
Telekterület: 1 143 m2
Kert mérete: 1 143 m2
Erkély mérete: -
Felszereltség: -
Parkolás: -
Kilátás: -
Egyéb extrák:  
Hirdető adatai
Hirdető neve: Otthon Centrum
Kapcsolattartó: Dániel Lilla Anna
Hirdető telefonszáma: +36 70 388 6296
Honlap: -
 
Üzenetet küldhet a hirdetőnek, árajánlatot tehet az ingatlanra:
Az Ön neve:
Az Ön e-mail címe:
Üzenet: