Ingatlan Televízió
Ingatlan Televízió
további hirdetések
adatlap bezárása

Budapest, VI.kerület 
Weiner Leó utca 

Hivatkozási szám: 5827460
Ingatlan adatai
Irányár: 76 497 500 Ft
Típus: lakás (tégla)
Kategória: eladó
Alapterület: 41 m2
Fűtés: egyéb
Állapota: új
Szobák száma: 2
Építés éve: -
Szintek száma: 5
Részletes leírás
Körúton belül, a belváros egyik központi részén, az Oktogon, és a Nyugati pályaudvar között, épül a főváros egyik exkluzív fejlesztése!
Összesen 12 db újépítésű lakás!

A lakások egyedisége egyrészt a régi idők és a modern kor ötvözetében rejlik. Egy klasszikus épület, melynek teljes körű felújítása során, a legfelső szinten 12 modern, tetőteraszos okos otthon kerül kialakításra.

Burkolatot, szanitereket, beltéri ajtók a mintakollekcióból a vevő kiválaszthatja!
Az ingatlan fűtése rendkívül energiatakarékos, hőszivattyús rendszerrel lesz kiépítve, a hő leadás a padló illetve mennyezetfűtésen keresztül történik.

A beépített konyhabútort kivéve az ÁR MINDENT TARTALMAZ!

Az ingatlanok átadása: 2026. 2.negyedév
Fizetési ütemezés:
25% Előszerződéskor
25% Szerkezetkész állapot
25% Nyílászárók beépítése, szigetelés megtörtént
25% Használatbavételi engedély
Ha valaki hitelből vásárolna, arra is van lehetőség,
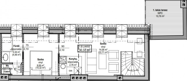
1/B lakás
További adatok
Telekterület: -
Kert mérete: -
Erkély mérete: 10 m2
Felszereltség: -
Parkolás: -
Kilátás: udvari
Egyéb extrák:  
Hirdető adatai
Hirdető neve: REGION Ingatlaniroda / Region Immo Kft
Kapcsolattartó: Makó Nelly
Hirdető telefonszáma: +36703675768
Honlap: -
 
Üzenetet küldhet a hirdetőnek, árajánlatot tehet az ingatlanra:
Az Ön neve:
Az Ön e-mail címe:
Üzenet: