Ingatlan Televízió
Ingatlan Televízió
további hirdetések
adatlap bezárása

Gyula 
 

Hivatkozási szám: 5827732
Ingatlan adatai
Irányár: 92 000 000 Ft
Típus: lakás (tégla)
Kategória: eladó
Alapterület: 126 m2
Fűtés: gáz (cirko)
Állapota: felújított
Szobák száma: 2+3
Építés éve: 1980
Szintek száma: 3
Részletes leírás
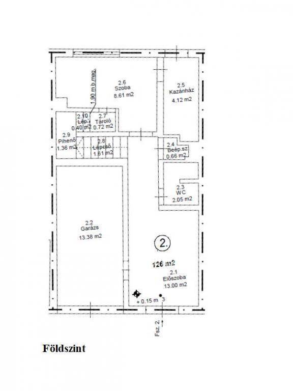
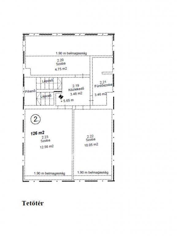
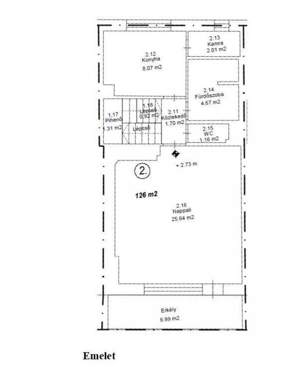
Gyulán, a Vár és a Várfürdő közvetlen közelében kínálok eladásra egy 126 nm-es téglából épült, háromszintes kiváló állapotú sorházat. Az ingatlan földszintjén elektromosan nyitható, zárt garázs, egy szoba, előszoba és egy WC található. Az első emeleten tágas, 25 nm-es nappali kapott helyet, amelyhez kényelmes terasz kapcsolódik. Itt található még a konyha, valamint külön fürdőszoba és WC is. A tetőtérben három hálószoba (két félszoba és egy nagyobb szoba), valamint fürdőszoba WC-vel szolgálja a kényelmet. A ház kívülről és a tető is hőszigetelt, emellett 2,5 kW-os napelemrendszer gondoskodik az energiatakarékosságról. A fűtésről többféle megoldás gondoskodik: gázkazán, vegyes tüzelésű kazán, valamint két hűtő-fűtő klíma. A modern kényelmet növeli a minden szinten kiépített központi porszívórendszer, az ablakok szúnyoghálóval ellátott és elektromos redőnnyel felszereltek. Ingatlanhoz tartozik igény szerint leválasztható közös udvar, amit egy fedett teraszról élvezhetünk. Az ház teljes bútorzattal és gépesített konyhával együtt eladó, így az új tulajdonos azonnal birtokba veheti. Igény esetén hitelügyintéző kollégánk tájékoztatja Önt a jelenleg elérhető legkedvezőbb feltételekről.

Referencia szám: M311586
További adatok
Telekterület: 171 m2
Kert mérete: -
Erkély mérete: 7 m2
Felszereltség: -
Parkolás: garázs
Kilátás: -
Egyéb extrák:  
Hirdető adatai
Hirdető neve: otpip.hu - Gyula Béke sugárút 9-11 - OTP Ingatlanpont Iroda
Kapcsolattartó: Karkó Dávid
Hirdető telefonszáma: +36704187613
Honlap: -
 
Üzenetet küldhet a hirdetőnek, árajánlatot tehet az ingatlanra:
Az Ön neve:
Az Ön e-mail címe:
Üzenet: