Ingatlan Televízió
Ingatlan Televízió
további hirdetések
adatlap bezárása

Zalaegerszeg 
 

Hivatkozási szám: 5828267
Ingatlan adatai
Irányár: 67 640 000 Ft
Típus: lakás (tégla)
Kategória: eladó
Alapterület: 76 m2
Fűtés: egyéb
Állapota: új
Szobák száma: 3
Építés éve: 2023
Szintek száma: 1
Részletes leírás
Új lakást szeretne, saját ízlésének megfelelően Zalaegerszegen?

Íme, egy nagyszerű ajánlat Zalaegerszeg belvárosában,75,51 négyzetméteres lakás, 770 000Ft/nm-es áron!!!

A 9 lakásos társasházban 44-87 nm-es, 3 szobás lakások kerülnek kialakításra ,különálló garázsokban vagy zárt parkolóhelyeken biztosított a gépkocsik tárolása és védelme.

A tervezés során fontos szempont a beépített anyagok magas minősége , a költséghatékony fenntartás és az épületek értékállósága. A ház fűtését , illetve meleg víz ellátását , hőszivattyús rendszer biztosítja , lakásonkénti egyedi méréssel és szabályozással , padlófűtéssel.
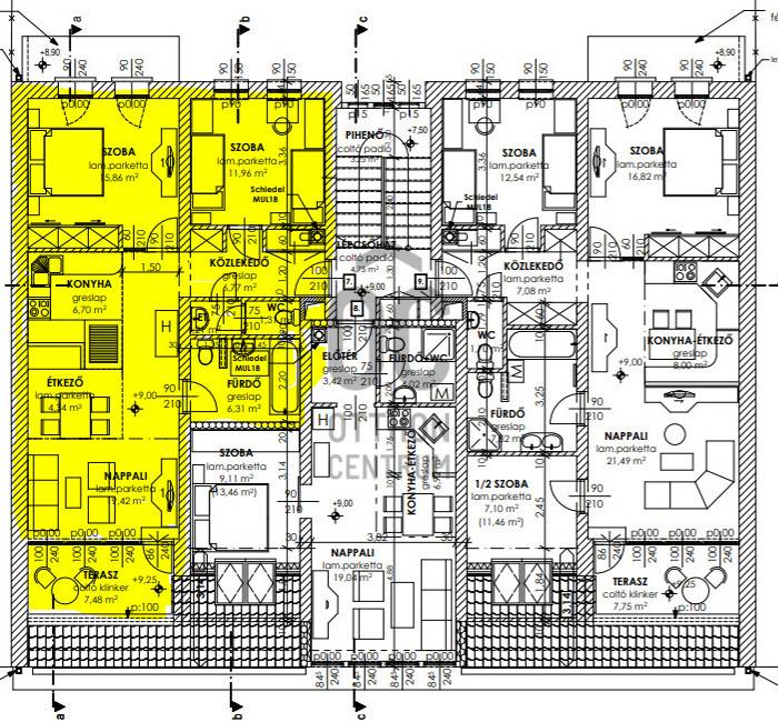
Az ingatlan az első emeleten helyezkedik el 88,22 m2 bruttó területű, ebből a 2 erkély mérete összesen 9,41 m2.
2 hálószoba, nappali, konyha, étkező, fürdő, 2 WC, előtér, közlekedő, terasz elrendezésű.


A projekt főbb jellemzői:
- belváros közeli , frekventált elhelyezkedés (Petőfi utca Ady - Mártírok közti részén)
- igényes , belvároshoz méltó külső megjelenés
- 9 prémium minőségű lakás funkcionálisan tervezett alaprajzokkal: 2 szobával, nappalival, erkélyekkel
- napfényes , déli - nyugati tájolású lakások
- fenntartható lakás , alacsony energiafelhasználás
- impozáns épület, kevésbé forgalmas belvárosi részen
- fürdő és WC külön helyiségben minden lakásban
- 3 rétegű nyílászárók , redőny , szúnyogháló , klíma kérhető
- Választható belső burkolatok , szaniterek , ajtók
- belső , zárt , kisméretű , parkosított udvar
- saját garázs vásárolható
- Családi Otthonteremtési Kedvezmény + Hitel igényelhető!

Az építkezés 70%-os készültségi szinten tart.

Az épület műszaki átadása: 2024 év eleje.
További adatok
Telekterület: -
Kert mérete: -
Erkély mérete: 9 m2
Felszereltség: -
Parkolás: -
Kilátás: -
Egyéb extrák:  
Hirdető adatai
Hirdető neve: oc.hu - Zalaegerszeg - Eötvös utca
Kapcsolattartó: Kovács Rita
Hirdető telefonszáma: +36704125441
Honlap: -
 
Üzenetet küldhet a hirdetőnek, árajánlatot tehet az ingatlanra:
Az Ön neve:
Az Ön e-mail címe:
Üzenet: