Ingatlan Televízió
Ingatlan Televízió
további hirdetések
adatlap bezárása

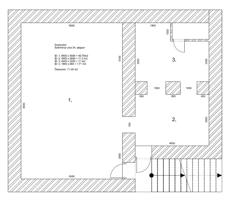
Szekszárd 
 

Hivatkozási szám: 5829084
Ingatlan adatai
Irányár: 15 000 000 Ft
Típus: kereskedelmi/ipari ingatlan
Kategória: eladó
Alapterület: 72 m2
Fűtés: -
Állapota: -
Szobák száma: -
Építés éve: -
Szintek száma: -
Részletes leírás
Szekszárd frekventált, belvárosi részén kínálunk megvételre egy 72 m²-es alagsori üzlethelyiséget, amely kiváló lehetőség vállalkozóknak, befektetőknek!

Főbb jellemzők:
- Tágas, 72 m²-es alapterület
- Klímával és hővisszanyerős szellőztető rendszerrel felszerelt
- Új vízvezeték és darálós WC
- Új villanyóra

Régi villanyvezeték – kisebb korszerűsítést igényelhet

Kedves Ügyfelünk, az ingatlanról videót is készítettünk. Ha ezt a hirdetést az Otthon Centrum weboldalán nézi, akkor a videóra a képek után tud kattintani. Ha egy másik weboldalon találta ezt a hirdetést, kérem nyissa meg az Otthon Centrum weboldalát, kattintson a „Regisztrációs szám keresése” menüpontra, és írja be ezt a regisztrációs számot a keresőbe: UZ018866 Itt meg tudja tekinteni az ingatlanról készült videót. Vagy írjon nekem, és szívesen elküldöm a videót.

Az ingatlan sokféle célra alkalmas: üzlethelyiség, iroda, szolgáltatóhely, stúdió vagy akár raktár kialakítására is remek választás.

A HIRDETÉSBEN SZEREPLŐ ÁR NETTÓ ÁR, ERRE +27% ÁFA SZÁMÍTANDÓ, ÍGY A BRUTTÓ ÁRA 19.050.000 Ft
Akár KFT-vel együtt is eladó!
További adatok
Telekterület: -
Kert mérete: -
Erkély mérete: -
Felszereltség: -
Parkolás: -
Kilátás: -
Egyéb extrák:  
Hirdető adatai
Hirdető neve: Otthon Centrum
Kapcsolattartó: Máté Dóra
Hirdető telefonszáma: +36 70 469 3581
Honlap: -
 
Üzenetet küldhet a hirdetőnek, árajánlatot tehet az ingatlanra:
Az Ön neve:
Az Ön e-mail címe:
Üzenet: