Ingatlan Televízió
Ingatlan Televízió
további hirdetések
adatlap bezárása

Szekszárd 
 

Hivatkozási szám: 5829205
Ingatlan adatai
Irányár: 15 000 000 Ft
Típus: ház
Kategória: eladó
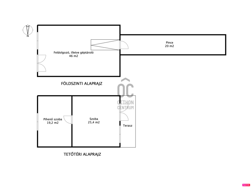
Alapterület: 90 m2
Fűtés: egyéb
Állapota: -
Szobák száma: 2
Építés éve: 1988
Szintek száma: -
Részletes leírás
Szekszárdon a Kisbödő hegyen eladó 4120 m2-es telken 90 m2-es alapterületű ház (alsó szint 46 m2, felső szint 44 m2 bruttó).

A tanya tégla épület, 270 cm-es belmagasságú, ipari árammal ellátott.
Az esővizet 4 m3-es beton ciszternában tárolják, a terasz alatt.
Beton úton megközelíthető.
10 méter hosszú téglázott pince, és további 2 m földpince tartozik a gazdasági épülethez.

A területen bor szőlő és csemege szőlő is található, illetve a telek felső részén egy konyhakert is van.
A telek méretéből adódóan alkalmas annyi növény megtermelésére, ami egy család megélhetését tudja biztosítani.

A tanya alsó szintje garázsként is használható a nagyméretű kapunak, és az egyben 46 m2 alapterületnek.

Menjünk nézzük meg!
További adatok
Telekterület: 4 120 m2
Kert mérete: 4 120 m2
Erkély mérete: -
Felszereltség: -
Parkolás: -
Kilátás: -
Egyéb extrák:  
Hirdető adatai
Hirdető neve: Otthon Centrum
Kapcsolattartó: Bihary Szabolcs
Hirdető telefonszáma: +36 70 716 9966
Honlap: -
 
Üzenetet küldhet a hirdetőnek, árajánlatot tehet az ingatlanra:
Az Ön neve:
Az Ön e-mail címe:
Üzenet: