Ingatlan Televízió
Ingatlan Televízió
további hirdetések
adatlap bezárása

Budapest, VII.kerület 
 

Hivatkozási szám: 5829643
Ingatlan adatai
Irányár: 1 500 000 000 Ft
Típus: egyéb ingatlan
Kategória: eladó
Alapterület: 1 930 m2
Fűtés: -
Állapota: felújítást igényel
Szobák száma: -
Építés éve: -
Szintek száma: -
Részletes leírás
Az eladásra kínált irodaház Budapest VII. kerületében található a Városligettől 8 perces, míg a Keleti pályaudvartól mintegy 10 perces sétára. A VII. kerület külső területe, a Ligetváros számos attrakciót rejt magában. Budapest „tüdeje” a Városliget számos intézménynek ad otthont: mint pl. a Széchenyi fürdő, Állatkert, Fővárosi Nagycirkusz, Műjégpálya, Szépművészeti Múzeum, Mezőgazdasági és Közlekedési Múzeumok és a Műcsarnok. Az ingatlan közelében található emellett a Hősök tere, a Puskás Aréna, és az Aréna pláza.
Az irodaház a 80-as években épült. A főépület az utcafronton található, nem rendelkezik pincével. Teteje könnyűszerkezetes, csarnokszerű beépítésű. Állapota elavult, fejlesztésre szorul.

Jelenlegi állapot: hasznos alapterület 1930 m2
Földszint: 804 m2
Fedett udvar gépkocsi bejáróval: 249 m2
Kiszolgáló helyiségek: 156 m2
Raktárak, műhelyek: 804 m2
1. emelet irodaszint: 217 m2
2. emelet irodaszint: 219 m2
3. emelet irodaszint: 219 m2
4. emelet irodaszint: 219 m2
5. emelet irodaszint: 202 m2
Tetőtéri lakás: 50 m2

Felújítás után funckióját tekintve maradhat irodaház, viszont magánklinika, magániskola funkcióját is betöltheti. Átalakítás esetén pedig alkalmas lakás, szálloda, vagy apartmanház kialakítására.
A tulajdonos az ingatlan apartmanházzá alakíásában gondolkozott, erre készültek a tervek.
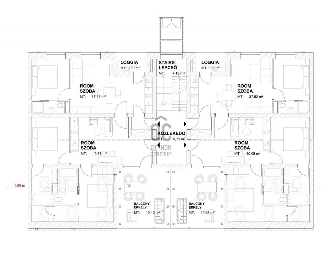
Jelenleg Fszt+4 emelet+tetőtér felosztású az épület. A felújítási terv ezt egy szinttel megemelné, és afölött egy tetőtéri szintet tartalmaz.
Tervezett állapot:
Nettó (Hasznos alapterület):
Földszint 856,12 m2
1. Emelet 237,71 m2
2. Emelet 235,42 m2
3. Emelet 237,71 m2
4. Emelet 235,42 m2
5. Emelet 237,71 m2
6. Emelet (Tetőtér) 172,48 m2
Erkély: 6. Emelet 38 m2
6. Emelet Loggia 3,73 m2/2
ÖSSZ: 2214,45 m2

Az épület masszív vasbeton pillérvázzal rendelkezik, melyet nem érdemes lebontani. Az övezeti besorolás alapján a beépíthetőség nincs kihasználva, így az épület bővítésére is van lehetőség, ami a beépíést L alakúra módostja. Erre készült bővíési tanulmányterv. Az épületszárny jelenlegi felépímény bal oldára csatlakozna.

Bővítés esetén 3651 m2-re bővül a hasznos terület. 70 db apartman kerülne kialakításra. A parkolók száma 17+17 (parkológépen). Az első emelethez tetőkert csatlakozna, így 163 m2 zöldfelülettel rendelkezne az ingatlan.

Várjuk szíves érdeklődését!

Referencia szám: UZ017145-ITV
További adatok
Telekterület: -
Kert mérete: -
Erkély mérete: 38 m2
Felszereltség: -
Parkolás: -
Kilátás: -
Egyéb extrák:  
Hirdető adatai
Hirdető neve: oc.hu - XXI. kerület - Zrínyi utca
Kapcsolattartó: Doktor Tímea
Hirdető telefonszáma: +36704125796
Honlap: -
 
Üzenetet küldhet a hirdetőnek, árajánlatot tehet az ingatlanra:
Az Ön neve:
Az Ön e-mail címe:
Üzenet: