Ingatlan Televízió
Ingatlan Televízió
további hirdetések
adatlap bezárása

Siófok 
 

Hivatkozási szám: 5829961
Ingatlan adatai
Irányár: 139 000 000 Ft
Típus: lakás (tégla)
Kategória: eladó
Alapterület: 110 m2
Fűtés: gáz (cirko)
Állapota: felújított
Szobák száma: 4
Építés éve: 1983
Szintek száma: 1
Részletes leírás
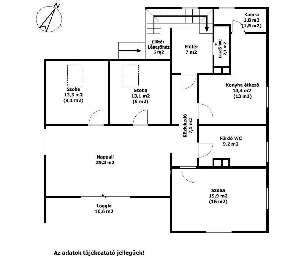
Balaton déli parton, Siófokon, 110 m2-es lakás eladó. Az első emeleti ingatlan a Belvároshoz közeli Aranyparton, frekventált üdülőövezetben helyezkedik el. Nappali plusz 3 szobás lakás több elemében felújításra került. A homlokzati nyílászárók műanyag szerkezetek, redőnnyel és szúnyoghálóval kivitelezettek. A fürdőszobában új burkolatok készültek, modern szaniterekkel. A belsőépítészeti megoldások, felületképzések kellemes, meleg, otthonos hangulatot sugároznak. A radiátoros fűtés mellett a lakótérben egy cserépkályha biztosítja a kellemes hőérzetet a téli hónapokban. A nyári időszakban 2 klímaberendezés működik. A lakótérhez tolóajtón át loggia kapcsolódik a déli oldalon. A lakás energetikai korszerűsítése megtörtént, a külső falakra hőszigetelő vakolat került, a fűtés és melegvíz ellátás kombi kondenzációs gázkazánnal megoldott. Az épület mellett fedett 2 egységes kocsibeálló áll rendelkezésre. Az udvarban külön 11 m2-es tároló van. A lakás zárt lépcsőházon át közelíthető meg. Az ingatlan minősített kereskedelmi szálláshely. Balaton-part, Nagystrand és szabadstrand 280 méter, városközpont 800 méter távolságban van. M312447

139000000 Ft

Referencia szám: M312447
További adatok
Telekterület: -
Kert mérete: -
Erkély mérete: -
Felszereltség: -
Parkolás: lakáshoz van kültéri parkoló
Kilátás: -
Egyéb extrák:  
Hirdető adatai
Hirdető neve: otpip.hu - Pécs Rákóczi út 19 - OTP Ingatlanpont Iroda
Kapcsolattartó: Vincze László György
Hirdető telefonszáma: +36-20-938-4141
Honlap: -
 
Üzenetet küldhet a hirdetőnek, árajánlatot tehet az ingatlanra:
Az Ön neve:
Az Ön e-mail címe:
Üzenet: