Ingatlan Televízió
Ingatlan Televízió
további hirdetések
adatlap bezárása

Budapest, XXI.kerület 
 

Hivatkozási szám: 5830618
Ingatlan adatai
Irányár: 110 000 000 Ft
Típus: kereskedelmi/ipari ingatlan
Kategória: eladó
Alapterület: 285 m2
Fűtés: -
Állapota: -
Szobák száma: -
Építés éve: 2010
Szintek száma: -
Részletes leírás
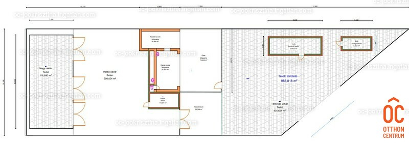
ELADÓ jelenleg építőanyagkereskedés és tüzépként üzemelő telephely, raktár Budapest XXI. kerületében

• üzlethelyiség: 121 m2 Padlófűtéssel
• emeleten egy szobás kis lakásnak kialakított helyiség: 26 m2 saját fűrdővel
• térkövezett, zárható raktár: 120 m2 bellmagaság 5,5 méter
• fedett tároló: 52 m2
• kazánhelyiség: 11,5 m2
• iroda: 24 m2
• büfé: 9 m2
• 435 négyzetméternyi térkövezett parkoló a vásárlók részre
• telek: 975 m2

Most 10.000.000 ft értékben árukészlet ajándákba ingyenesen.
Céggel együtt megvásárolható. Az ingatlan tulajdoni lap szerint külterület, forgalmas úton helyezkedik el.

Jelenleg bérbe van adva egy része, ezért folyamatos bevételt jelent(het) az új tulajdonos számára:

● Parketta bolt: 120.000 ft
● gépkölcsönző 200.000 ft


melyek ügyfélforgalma szintén jót tesz az építőanyag kereskedésnek is, amennyiben ez a tevékenység marad.

Hitelügyintézésel.
Lakásbiztosításban is otthon vagyunk!
Ingatlan és biztosítás egy helyen!
Szakértő kollégáink segítenek megtalálni a legmegfelelőbb ajánlatot.
További adatok
Telekterület: -
Kert mérete: -
Erkély mérete: -
Felszereltség: -
Parkolás: -
Kilátás: -
Egyéb extrák:  
Hirdető adatai
Hirdető neve: Otthon Centrum
Kapcsolattartó: Dégi János
Hirdető telefonszáma: +36 70 716 9051
Honlap: -
 
Üzenetet küldhet a hirdetőnek, árajánlatot tehet az ingatlanra:
Az Ön neve:
Az Ön e-mail címe:
Üzenet: