Ingatlan Televízió
Ingatlan Televízió
további hirdetések
adatlap bezárása

Lajoskomárom 
 

Hivatkozási szám: 5831135
Ingatlan adatai
Irányár: 128 000 000 Ft
Típus: lakás (tégla)
Kategória: eladó
Alapterület: 200 m2
Fűtés: gáz (cirko)
Állapota: felújított
Szobák száma: 4
Építés éve: 1900
Szintek száma: 1
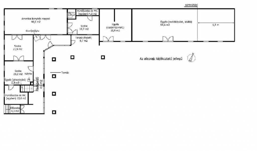
Részletes leírás
A Balatontól mintegy 20 km-re fekvő Lajoskomárom rendezett, zöldövezeti utcájában kínálok megvételre egy gondosan felújított, kúria jellegű 200 m2-es lakóépületet, amely 1700 m2-es telekkel, gazdasági épületekkel és fedett terasszal rendelkezik.

A déli fekvésű, világos, két bejárattal rendelkező ház 1900-ban épült, felújítása 2016-ban, a teljes tetőszerkezet cseréje 2017-ben történt meg. A házban három hálószoba, két fürdőszoba, három WC, nappali-konyha, spájz, közlekedők, kazánház és mosókonyha található. A hálószobák tágasak és csendesek, kettő közvetlen fürdőszoba-kapcsolattal. A jól felszerelt, központi pultos konyhához nagy spájz tartozik.

A fűtés elektromos padlófűtéssel és vegyes tüzelésű kazánnal, radiátoros hőleadással történik. Kiegészítőként cserépkályha, fatüzelésű kályha és klíma biztosítja a komfortot. A meleg vizet elektromos rendszer és puffertartály szolgáltatja. A fa nyílászárók hőszigeteltek, szúnyoghálóval felszereltek.

A burkolatok laminált parketta és kerámia, a falak festettek. A ház egy része alatt pince található. Az ingatlan tehermentes, azonnal költözhető, a kert gondozott, kútvízzel öntözhető, több termő gyümölcsfával. A telken két nagy gazdasági épület és fatároló is rendelkezésre áll. Igény esetén egy több mint két hektáros terület is megvásárolható hozzá.

Otthon Start Hitelprogram

128000000 Ft
Érd.: Lepsényi Kornél +3670/8840188

Referencia szám: M310170
További adatok
Telekterület: 1 757 m2
Kert mérete: -
Erkély mérete: 10 m2
Felszereltség: -
Parkolás: garázs
Kilátás: -
Egyéb extrák:  
Hirdető adatai
Hirdető neve: otpip.hu - Velence Tópart utca 47 - OTP Ingatlanpont Iroda
Kapcsolattartó: Lepsényi Kornél
Hirdető telefonszáma: +36-70-884-0188
Honlap: -
 
Üzenetet küldhet a hirdetőnek, árajánlatot tehet az ingatlanra:
Az Ön neve:
Az Ön e-mail címe:
Üzenet: