Ingatlan Televízió
Ingatlan Televízió
további hirdetések
adatlap bezárása

Komádi 
 

Hivatkozási szám: 5831210
Ingatlan adatai
Irányár: 27 900 000 Ft
Típus: ház
Kategória: eladó
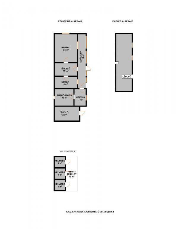
Alapterület: 81 m2
Fűtés: gáz (konvektor)
Állapota: felújított
Szobák száma: 3
Építés éve: 1975
Szintek száma: 2
Részletes leírás
Eladásra kínálunk egy igényesen felújított családi házat Komádiban, teljes butorzattal és gépesítéssel - azonnal költözhető!

Főbb jellemzők:
- 1496 m2-es, teljesen körbekerített telek - tökéletes kertészkedéshez vagy egyéb hasznosításra
- 81 m2 hasznos alapterületű családi ház beton alapon, vegyes falazattal
Teljes bútorzat és gépesítés a vételárban - a képen látható bútorok mind benne vannak!

Felújítások, amelyek garantálják a kényelmet és modern életet:
- Teljes tetőszerkezet és szigetelés megújult - tetőtér kialakítva (szoba, iroda vagy egyéb célra)
- Teljes villamoshálózat csere
- Teljes vízvezeték és csatornarendszer felújítás
- Új hideg és melegburkolatok
- Teljesen felújított fürdőszoba modern bútorokkal és gépekkel
- Új konyhabútor beépített Whirlpool mosogatógéppel, gáz tűzhellyel és hűtővel
- Modern beépített sparhelt
- Tágas, bútorozott nappali

Igényesen, szeretettel kialakított terek, csak költözni kell, és azonnal élvezhető!

További információért hívjon bizalommal akár hétvégén is. Megtekintésre telefonos egyeztetés alapján van lehetőség. Kedvezményes kamatozású lakásvásárlási, felújítási hitelek, OTTHON START valamint CSOK és Babaváró ügyintézés az OTP hátterével irodánkban.
További adatok
Telekterület: 1 496 m2
Kert mérete: -
Erkély mérete: -
Felszereltség: -
Parkolás: -
Kilátás: -
Egyéb extrák:  
Hirdető adatai
Hirdető neve: otpip.hu - Debrecen Kürtös utca 8 - OTP Ingatlanpont Iroda
Kapcsolattartó: Mester Tibor
Hirdető telefonszáma: +36-20-806-7007
Honlap: -
 
Üzenetet küldhet a hirdetőnek, árajánlatot tehet az ingatlanra:
Az Ön neve:
Az Ön e-mail címe:
Üzenet: