Ingatlan Televízió
Ingatlan Televízió
további hirdetések
adatlap bezárása

Budapest, XIX.kerület 
 

Hivatkozási szám: 5831283
Ingatlan adatai
Irányár: 63 000 000 Ft
Típus: lakás (tégla)
Kategória: eladó
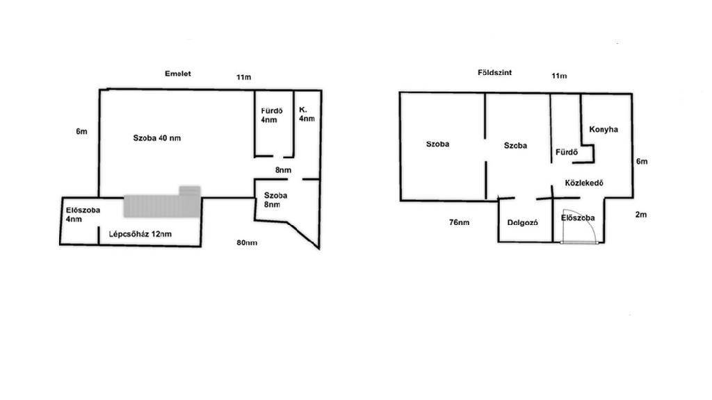
Alapterület: 140 m2
Fűtés: gáz (cirko)
Állapota: felújítást igényel
Szobák száma: 3+1
Építés éve: 1990
Szintek száma: 2
Részletes leírás
***Kizárólag Nálunk!*** Budapest, XIX. kerület, Kispest legjobb, kertvárosi részén, a Nádasdy - Fő utcánál kínálunk eladásra egy kétszintes, teljeskörűen felújítandó, 140 nm alapterületű, hátsó házrészt, a hozzá tartozó, saját, 250 nm telekrésszel. Megosztási szerződés készült.
Az első szomszéd idősebb, kedves házaspár, igény szerint egyben is eladó!
We can recommend the assistance of a reliable (English speaking) lawyer, if so requested and can also offer help at arranging the administrative matters related to the acquisition. If you wish to send an English language notification of your interest, please send a message thereof indicating your phone number (and/or e-mail address) so we can contact you without language difficulties.

Referencia szám: M306777
További adatok
Telekterület: 250 m2
Kert mérete: -
Erkély mérete: -
Felszereltség: -
Parkolás: -
Kilátás: -
Egyéb extrák:  
Hirdető adatai
Hirdető neve: otpip.hu - Budapest XIII. kerület Pannónia utca 25 - OTP Ingatlanpont Iroda
Kapcsolattartó: Rácz Ildikó Éva
Hirdető telefonszáma: +36-70-393-4956
Honlap: -
 
Üzenetet küldhet a hirdetőnek, árajánlatot tehet az ingatlanra:
Az Ön neve:
Az Ön e-mail címe:
Üzenet: