Ingatlan Televízió
Ingatlan Televízió
további hirdetések
adatlap bezárása

Kecskemét 
 

Hivatkozási szám: 5832137
Ingatlan adatai
Irányár: 129 900 000 Ft
Típus: lakás (tégla)
Kategória: eladó
Alapterület: 192 m2
Fűtés: gáz (cirko)
Állapota: felújított
Szobák száma: 7
Építés éve: 1986
Szintek száma: 1
Részletes leírás
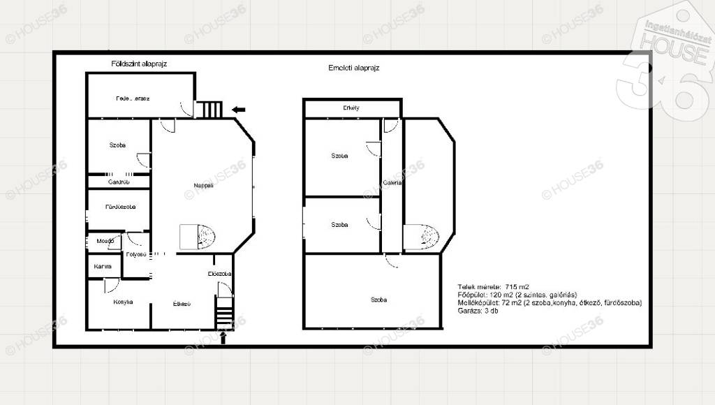
Egyedi lehetőség családoknak és befektetőknek: galériás főépület + külön lakható melléképület 3 garázzsal és modern energiatakarékos megoldásokkal Kecskeméten a Petőfivárosban.

Főbb jellemzők:


715 m2-es telek, gondozott kerttel
Főépület (120 m2): nappali+4 szoba, étkező-konyha, kamra, 2 fürdőszoba, fedett terasz (20 m2) és erkély (5 m2)
Melléképület 72 m2: akár kiadásra is tökéletes
3 garázs: autóknak, tárolásra, műhelynek

Kényelem és energiahatékonyság:


7,22 kWp napelemrendszer - alacsony rezsi
Gázfűtés, vegyes tüzelésű kazán, kandalló a nappaliban, valamint hűtő - fűtő klíma
30 cm tetőszigetelés hőtükörrel
új tetőszerkezet, új külső szigetelés, és színezés, műanyag nyílászárók
fúrt kút (42 m) a kert öntözéséhez

Lokáció: csendes, kis forgalmú utca, mégis közel mindenhez.
Per és tehermentes, azonnal költözhető!
Ne hagyja ki ezt a páratlan lehetőséget - legyen Ön az új tulajdonosa ennek a különleges, alacsony rezsijű családi háznak Kecskemét egyik legjobb városrészében!

Figyelem, az adatlap kapott adatok alapján készült, pontosságáért felelősséget nem tudunk vállalni.
A tulajdonos kérésére az ingatlan bemutatása egy személyes konzultáció után történik, ahol részletes tájékoztatást kaphat az ingatlan paramétereiről és egyéb kényelmi szolgáltatásairól.
Amennyiben vásárlásához el kell adnia saját ingatlanát, szívesen segítek, forduljon hozzám bizalommal!
Az iroda legfrissebb, aktuális kínálatát a HOUSE36 saját weboldalán találja!
További adatok
Telekterület: 715 m2
Kert mérete: -
Erkély mérete: 4 m2
Felszereltség: -
Parkolás: -
Kilátás: -
Egyéb extrák:  
Hirdető adatai
Hirdető neve: h36.hu - HOUSE36 Ingatlanhálózat
Kapcsolattartó: Gugora-Mezei Ágnes
Hirdető telefonszáma: +36706708916
Honlap: -
 
Üzenetet küldhet a hirdetőnek, árajánlatot tehet az ingatlanra:
Az Ön neve:
Az Ön e-mail címe:
Üzenet: