Ingatlan Televízió
Ingatlan Televízió
további hirdetések
adatlap bezárása

Budapest, XI.kerület 
 

Hivatkozási szám: 5832795
Ingatlan adatai
Irányár: 459 900 000 Ft
Típus: ház
Kategória: eladó
Alapterület: 400 m2
Fűtés: -
Állapota: -
Szobák száma: 5
Építés éve: 2001
Szintek száma: -
Részletes leírás
Exkluzív, panorámás családi villa – minimális rezsivel!

1300 m²-es, intim, örökpanorámás telken: 3 szint, 3 szoba, 5 fürdőszoba, márványburkolatok, télikert és tágas, napfényes terek.
400 m²-es villa prémium anyagokból épült: márvány lépcsők és burkolatok, kovácsoltvas korlátok, trópusi fa nyílászárók, padlófűtés és egyedi belső dekorelemek, hangulatos kandalló, tágas teraszok és 1.300 m2 intim kert gondoskodnak a pihenésről, garantálják a luxusérzetet.

A ház teljes energetikai korszerűsítésen esett át: hőszivattyú, napelemek, kandalló és hybrid fan-coil valamint okos vezérlőrendszer biztosítja, gondoskodik a rendkívül alacsony fenntartási költségekről.

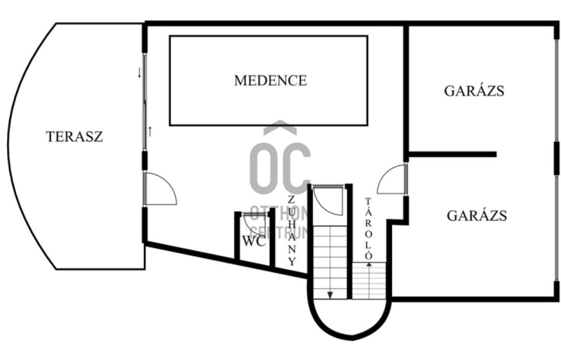
Elrendezés
nappali szint – amerikai konyhás nappali, dolgozószoba, gardrób, fürdő
felső szint – 3 hálószoba, 2 fürdő, erkélyek,
kertszint – garázs, tárolók, wellnessrészleg.
Wellnessrészleg feszített víztükrös medencével és szauna-előkészítéssel.
3 autóbeálló garázs, fűthető felhajtó, gyönyörű kert, hatalmas teraszok és csodás panoráma – minden adott a luxus és a kényelem tökéletes harmóniájához.

Biztonság: nyitás-, törés- és mozgásérzékelő rádiós riasztórendszer, automata öntözőrendszer.

Kiváló lokáció: bevásárlás, gyógyszertár, posta sétatávolságra, M1/M7 gyorsan elérhető.

Akiknek ajánlom...
1. Környezettudatos, prémium vásárlók
– Akik luxusotthont szeretnének, de fontos számukra a fenntarthatóság és az alacsony rezsi.
– Magas jövedelmű családok, akik értékelik a modern technológiát és a zöld megoldásokat.

2. Diplomáciai képviseletek, nagykövetségek
– A ház mérete, reprezentatív megjelenése, nagy terei és a csendes, biztonságos környék miatt kiválóan alkalmas rezidenciának vagy nagykövetségi irodának.

3. Vállalkozók, üzletemberek
– Akik reprezentatív otthont szeretnének, ahol akár vendégeket, üzleti partnereket is fogadhatnak.
– A wellnessrészleg és a panoráma exkluzív környezetet ad, ami státuszszimbólum is.

4. Nagycsaládosok
– Az 5 szoba, 4 fürdőszoba, nagy nappali és a kert lehetővé teszi, hogy kényelmesen éljen együtt több generáció.

5. Befektetők / bérbeadók
– A nagykövetségi vagy expat bérlők számára magas hozammal, hosszú távon kiadható.

Ez a ház ideális választás családnak, nagykövetségnek vagy rezidenciának – igazi ritkaság a piacon!
A házról és a környékről minden további részletet valamint a felmerülő kérdésekre a megtekintés alatt tudok választ adni.
További adatok
Telekterület: 1 321 m2
Kert mérete: 1 321 m2
Erkély mérete: 61 m2
Felszereltség: -
Parkolás: -
Kilátás: -
Egyéb extrák:  
Hirdető adatai
Hirdető neve: Otthon Centrum
Kapcsolattartó: Csizmadia Márta
Hirdető telefonszáma: +36 70 716 8176
Honlap: -
 
Üzenetet küldhet a hirdetőnek, árajánlatot tehet az ingatlanra:
Az Ön neve:
Az Ön e-mail címe:
Üzenet: