Ingatlan Televízió
Ingatlan Televízió
további hirdetések
adatlap bezárása

Budapest, II.kerület 
 

Hivatkozási szám: 5833074
Ingatlan adatai
Irányár: 295 000 000 Ft
Típus: lakás (tégla)
Kategória: eladó
Alapterület: 135 m2
Fűtés: gáz (cirko)
Állapota: felújított
Szobák száma: 5
Építés éve: 1920
Szintek száma: 1
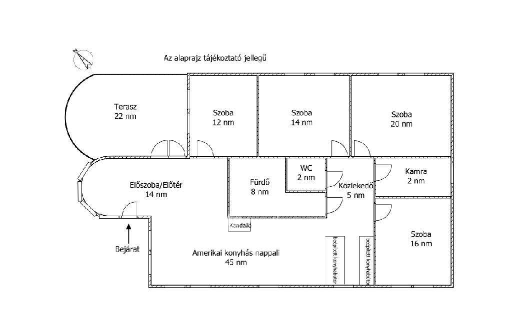
Részletes leírás
RITKA LEHETŐSÉG, SZÁZADFORDULÓS, FELÚJÍTOTT VILLA HIDEGKÚTON, ERDŐSZÉLÉN! Eladásra kínálunk Budapest II/A. kerületének egyik legexkluzívabb, legzöldebb részén, Hársakalján, egy igazi építészeti ékkövet! Ez a 135 nm-es, századfordulós stílusban épült, 2022-ben modernizált villa tökéletes harmóniát teremt a klasszikus elegancia és a mai kor kényelme között, amely egy 674 négyzetméteres, parkosított telken helyezkedik el, egy csendes, erdőszéli zsákutcában. Az ingatlanban négy tágas szoba, valamint egy amerikai konyhás nappali található, ahol egy gyönyörű kandalló gondoskodik az otthonos, meghitt hangulatról. A ház fűtését korszerű kombi gázkazán biztosítja radiátoros hőleadással, a nyári komfortot pedig légkondicionáló berendezések szolgálják. Az épületet utoljára 2022-ben korszerűsítették, ennek köszönhetően kívül-belül kiváló állapotnak örvend, hőszigetelt, energiahatékony. A házhoz tartozik egy kétállásos garázs, egy száraz pince, valamint egy beépített, gondozott medence is, mely a hatalmas terasz és a gyönyörű kert mellett tökéletes lehetőséget kínál a pihenésre és kikapcsolódásra. Az ingatlan elhelyezkedése is elsőrangú, hiszen pár perc sétára található a legközelebbi buszmegálló, ahol éjszakai járat is közlekedik, a közelben pedig számos bevásárlási lehetőség, gyógyszertár, rendelő, iskola, óvoda és bölcsőde könnyíti meg a mindennapokat. Ez a villa nem csupán egy otthon, hanem egy életérzés, ahol a természet közelsége, a nyugalom és a kifinomult elegancia találkozik.
További adatok
Telekterület: 674 m2
Kert mérete: -
Erkély mérete: 25 m2
Felszereltség: -
Parkolás: garázs
Kilátás: -
Egyéb extrák:  
Hirdető adatai
Hirdető neve: otpip.hu - Budapest XI. kerület Bartók Béla út 62 - OTP Ingatlanpont Iroda
Kapcsolattartó: Bertalan Barnabásné
Hirdető telefonszáma: +36-70-439-8126
Honlap: -
 
Üzenetet küldhet a hirdetőnek, árajánlatot tehet az ingatlanra:
Az Ön neve:
Az Ön e-mail címe:
Üzenet: