Ingatlan Televízió
Ingatlan Televízió
további hirdetések
adatlap bezárása

Budapest, VI.kerület 
 

Hivatkozási szám: 5833125
Ingatlan adatai
Irányár: 99 000 000 Ft
Típus: lakás (tégla)
Kategória: eladó
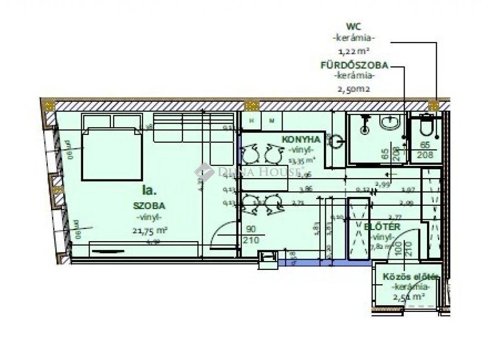
Alapterület: 48 m2
Fűtés: házközponti egyedi méréssel
Állapota: új
Szobák száma: 1
Építés éve: 2025
Szintek száma: 1
Részletes leírás
Budapesten, a 6. kerületben, néhány percre a Nyugati pályaudvartól, kitűnő lokációban épültek meg ezek az energiatakarékos lakások, egy társasházra ráépítéssel, lift kialakításával. A kialakított 14 lakás modern, a mai kornak minden tekintetben megfelelő, jó belső terekkel rendelkező ingatlan. Több lakáshoz hatalmas tetőterasz tartozik, de kisebb lakások is elérhetők még itt!A lakások fűtése mennyezet hűtés-fűtéssel történik, padlófűtéssel kiegészítve.A 6. kerületben nagyon kevés új lakás épül, a lokáció kimagasló, jó döntés mind élettérnek mind pedig befektetésnek választani.A lakások várható átadása: 2025. SzeptemberRészletes információkért keressen bizalommal!
A Duna House teljes kínálatával kapcsolatban forduljanak hozzám bizalommal!

Bankfüggetlen pénzügyi szakembereink tanácsadással, ügyintézéssel tudják segíteni Önöket álmaik, céljaik megvalósításában!

Vegye igénybe díjmentes konzultációinkat!



https://www.facebook.com/otthonkonnyeden

Referencia szám: PR051645/LK/25773
További adatok
Telekterület: -
Kert mérete: -
Erkély mérete: -
Felszereltség: -
Parkolás: garázs
Kilátás: -
Egyéb extrák:  
Hirdető adatai
Hirdető neve: dh.hu - Kispest
Kapcsolattartó: Drevnó Béla
Hirdető telefonszáma: +36703077503
Honlap: -
 
Üzenetet küldhet a hirdetőnek, árajánlatot tehet az ingatlanra:
Az Ön neve:
Az Ön e-mail címe:
Üzenet: