Ingatlan Televízió
Ingatlan Televízió
további hirdetések
adatlap bezárása

Szombathely 
Farkas Károly utca 

Hivatkozási szám: 5833804
Ingatlan adatai
Irányár: 57 900 000 Ft
Típus: lakás (tégla)
Kategória: eladó
Alapterület: 58 m2
Fűtés: házközponti egyedi méréssel
Állapota: új
Szobák száma: 3
Építés éve: 2025
Szintek száma: 1
Részletes leírás
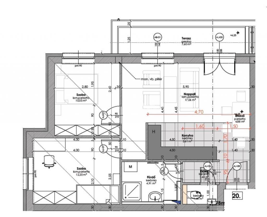
A hirdetésben szereplő második emeleti Ny-i tájolású 57,78 m2-es nappali + 2 szobás lakás eladó, 7,6 m2-es erkéllyel.

Szombathely északi városrészén az Arborétum lakóparkban csendes, nyugodt, családi házas övezetben, új építésű modern 20 lakásos társasházban kínálunk magas műszaki tartalommal megvalósuló 40-67 m2 közötti nappali + 1- nappali +2 szobás ingatlanokat, földszinti lakásokat kertkapcsolattal.

A lakások fűtését meleg víz ellátását házközponti kondenzációs gázkazán biztosítja egyedi hőmennyiség szabályozással és mérővel, padlófűtéssel.

A vételár tartalmazza:

- Burkolatok választhatók: Hidegburkolat 7.000,-/m2 – 30/60-as lap mérettől burkolási felárral kell kalkulálni, meleg burkolat 6.000,-/m2.

- klíma előkészítést

- redőny tok előkészítést

- fürdőszoba és wc helységek szaniter csomagját

- Beltéri ajtó már nem választható.

- villamos és gépészeti módosítás felár ellenében.

A parkolás, 10db garázs és 20db felszíni parkolóval biztosított, melyek igény szerint, parkoló 1,8 Millió Ft-ért, garázs 10,9 Millió Ft-ért megvásárolhatók.

Közös tároló nincs.

Tároló vásárlására is van lehetőség 1,5 Millió-3,8 Millió Forint közt.

A fotókon referenciaként az elkészült épülettömbök is megtekinthetők.

CSOK állami támogatás igénybe vehető! Teljes körű hitelügyintézés!

Bővebb információval irodánkban tudunk szolgálni!

Belvárosi Ingatlan Pont Ingatlaniroda

9700 Szombathely, Bejczy utca 1-3.

Referencia szám: FL5-II.20-ITV
További adatok
Telekterület: -
Kert mérete: -
Erkély mérete: 8 m2
Felszereltség: -
Parkolás: lakáshoz van kültéri parkoló
Kilátás: -
Egyéb extrák:  
Hirdető adatai
Hirdető neve: belvarosiip.hu - Belvárosi Ingatlan Pont
Kapcsolattartó: Kiss Balázs
Hirdető telefonszáma: 70/5411458
Honlap: -
 
Üzenetet küldhet a hirdetőnek, árajánlatot tehet az ingatlanra:
Az Ön neve:
Az Ön e-mail címe:
Üzenet: